Создаю уникальные, продуманные и комфортные пространства

Наталья Шелобкова gitelstudio

Рейтинг: 59
не верифицирован
Всего отзывов: 0
  • Работ в портфолио: 9
  • Типовых услуг: 2
  • Работ на продажу: 0
Была на сайте:

Планировочное решение

500 руб
сделаю за 7 дней

22

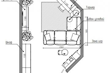
Планировочное решение -500 руб.кв.м.
-план до реконструкции;
-план сносимых стен (при необходимости);
-план после реконструкции (при необходимости);
-план расстановки мебели (2-3 варианта.Напрямую зависит от потенциала помещения)+ Эскизная визуализация в подарок.

Планировочное решение
Планировочное решение
Планировочное решение
Заказать услугу

Вернуться в каталог