Рейтинг: 92
не верифицирован
Всего отзывов: 0
  • Работ в портфолио: 22
  • Типовых услуг: 6
  • Работ на продажу: 0
  • Образование: Cпециалитет
  • Стаж работы: 22 года
  • Тип занятости: Полный фриланс
  • Юридический статус:Самозанятый
Был на сайте:

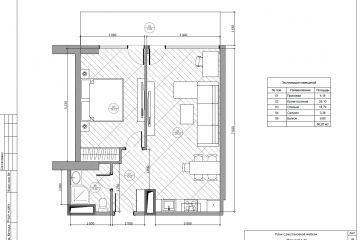
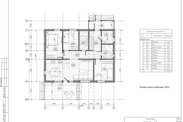
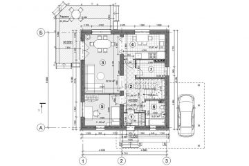
Планировка дома, квартиры - с мебелью

10 000 руб
сделаю за 3 дня

23

Сделаю для вас любые планировки: дома, квартиры, офиса.

Качественно, подробно, с любыми размерами, с расстановкой мебели и/или оборудования, с площадью каждого помещения. С учетом толщины стен и отделки.

При дальнейшем сотрудничестве могу сделать полноценный архитектурный и рабочий проект. Смотрите другие мои предложения об услугах.

Стоимость за план - до 30 кв.м. общей площади.

Нужно для заказа:

Обмерные планы, планы БТИ, эскиз от руки, планировка из другого проекта и ваши пожелания.

Для прочих планов техническое задание.

Планировка дома, квартиры - с мебелью
Планировка дома, квартиры - с мебелью
Планировка дома, квартиры - с мебелью
Заказать услугу

Вернуться в каталог