Рейтинг: 21
не верифицирован
Всего отзывов: 0
  • Работ в портфолио: 1
  • Типовых услуг: 2
  • Работ на продажу: 0
Был на сайте:

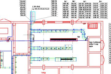
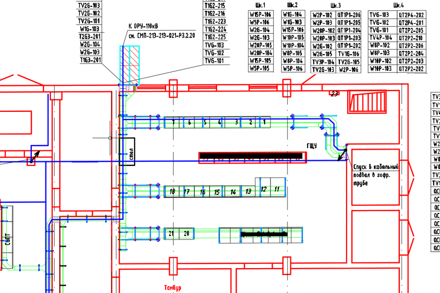
План раскладки кабеля, кабельный журнал, спецификации, ведомости объемов работ

5 000 руб
сделаю за 5 дней

90

Выполнение плана раскладки кабеля по ОРУ ПС, ЗРУ, кабельного журнала, спецификаций, ведомостей объемов работ. Стоимость работы и срок выполнения зависят от объемов работ.

План раскладки кабеля, кабельный журнал, спецификации, ведомости объемов работ
План раскладки кабеля, кабельный журнал, спецификации, ведомости объемов работ
План раскладки кабеля, кабельный журнал, спецификации, ведомости объемов работ
Заказать услугу

Вернуться в каталог