Рейтинг: 1 703
Паспорт верифицирован
Всего отзывов: 7 0
Профессионализм: 10 Коммуникация: 10
Выполнил заданий: 6
  • Работ в портфолио: 25
  • Типовых услуг: 4
  • Работ на продажу: 0
  • Стаж работы: 3 года
  • Зарегистрирован: 24.07.2024
  • Образование: Cпециалитет
  • Юридический статус:Частное лицо
Был на сайте:

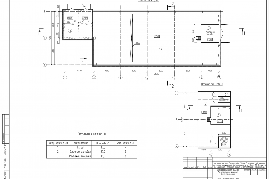
Отрисовка плана

5 000 руб
сделаю за 3 дня

84

Услуга: отрисовка планов домов и прочих объектов

Я предлагаю профессиональную услугу по созданию детальных планов домов и других объектов. Я имею большой опыт работы в этой сфере и использую современные инструменты и технологии для создания точных и качественных чертежей.

Что я делаю:
-разрабатываю планы с учётом всех архитектурных особенностей и требований заказчика;
- выполняю отрисовку планов перепланировок;

Если вам нужен детальный план дома или другого объекта, обратитесь, и я с радостью помогу вам.

Отрисовка плана
Отрисовка плана
Отрисовка плана
Заказать услугу

Вернуться в каталог