Рейтинг: 53
не верифицирован
Всего отзывов: 0
  • Работ в портфолио: 3
  • Типовых услуг: 3
  • Работ на продажу: 0
Была на сайте:

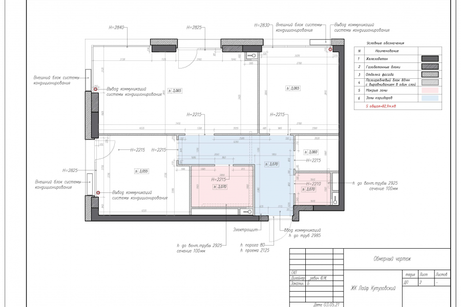
Обмерные чертежи помещений в автокад

7 000 руб
сделаю за 3 дня

43

Выполню обмер и фотофиксацию помещений для дизайнеров и архитекторов. С выездом на объект (договоренность за 2-3 дня). Москва и Московская область.
Комплект документов:
Чертеж в AutoCad (исходник)
Чертеж в PDF со всеми необходимыми указаниями (материалы, высоты, инженерия, и пр.)
Сверстанный альбом с фотофиксацией (PDF)
Выполню по вашему образцу, либо по своей отработанной схеме (примеры работ предоставлю)
Указана средняя стоимость за объекты до 150м.кв

Обмерные чертежи помещений в автокад
Обмерные чертежи помещений в автокад
Заказать услугу

Вернуться в каталог