Рейтинг: 32
не верифицирован
Всего отзывов: 0
  • Работ в портфолио: 2
  • Типовых услуг: 1
  • Работ на продажу: 0
Был на сайте:

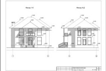
Эскизный проект коттеджа

250 руб
сделаю за 14 дней

10

Эскизный проект
Состав Проекта :
-план фундамента
-план 1 го этажа
-план мансарды
-план расположения перекрытия ( плиты или балки)
-схема расположения стропил
-план кровли
-4 фасада
-разрез
-3D визуализация( 3 вида)
-Подсчёт основных объемов материалов( площадь фасадов, площадь кровли, объём блоков на стены , объём бетона на фундамент)

Эскизный проект коттеджа
Эскизный проект коттеджа
Заказать услугу

Вернуться в каталог