Люблю свою работу

Кирилл e333302

Рейтинг: 50
не верифицирован
Всего отзывов: 0
Опубликовал заданий: 3
  • Работ в портфолио: 0
  • Типовых услуг: 3
  • Работ на продажу: 0
  • Зарегистрирован: 05.12.2019
Был на сайте:

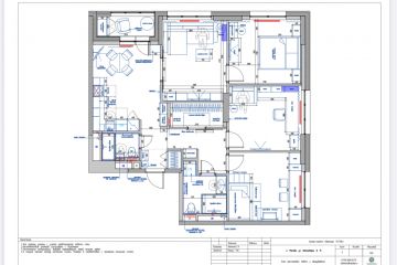
Дизайн-проект (оптимальный)

4 500 руб
сделаю за 14 дней

19

Данный проект - идеальный вариант для мастеров и для заказчика!

Дизайн проект для вашей квартиры (оптимальный)
- обмерный план;
- план демонтажа и монтажа конструкций/перегородок;
- план расстановки мебели (более 2 вариантов - доп.)
- план водоснабжения и отопления;
- план электромонтажа;
- план освещения;
- план полов и плинтусов;
- план потолка;
- раскладка плитки;
- развертка стен (доп.)

PS стоимость указана за изготовление альбома чертежей из 8 листов при сроке до 14 календарных дней. Предоплата 50%, пост оплата 50% по принятию проекта.

Дизайн-проект (оптимальный)
Заказать услугу

Вернуться в каталог