Рейтинг: 61
не верифицирован
Всего отзывов: 0
  • Работ в портфолио: 11
  • Типовых услуг: 6
  • Работ на продажу: 0
  • Зарегистрирован: 29.03.2022
Была на сайте:

Дизайн-проект базовый

1 000 руб
сделаю за 20 дней

101

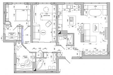
- замеры помещения, или обмерочный план по вашим замерам.
- план расстановки мебели (2-3 варианта на выбор),
- визуализация в виде коллажей,
- рабочие чертежи (план монтажа/демонтажа стен, план расстановки розеток и выключателей, план освещения, план напольных покрытий и теплых полов, план потолков, развертки и отделка стен),
- смета (предварительный подбор отделочных материалов, мебели и предметов интерьера).

Если вам нужен полный дизайн-проект с чертежами для ремонтной бригады, но хочется сэкономить на визуализации - объемных коллажей вам будет вполне достаточно.

Дизайн-проект базовый
Заказать услугу

Вернуться в каталог