Скорость качеству не помеха!

Антон Волков volmark

Рейтинг: 2 147
Паспорт верифицирован
Всего отзывов: 8 0
Профессионализм: 10 Коммуникация: 10
Выполнил заданий: 11
  • Активность:
  • Работ в портфолио: 81
  • Типовых услуг: 10
  • Работ на продажу: 1
  • Возраст: 29 лет
  • Зарегистрирован: 09.07.2019
Был на сайте:

Продаю: Рабочий проект жилого дома 250кв.м. (2 этажа)

39 000 руб
Доработка: 10 000 руб

151

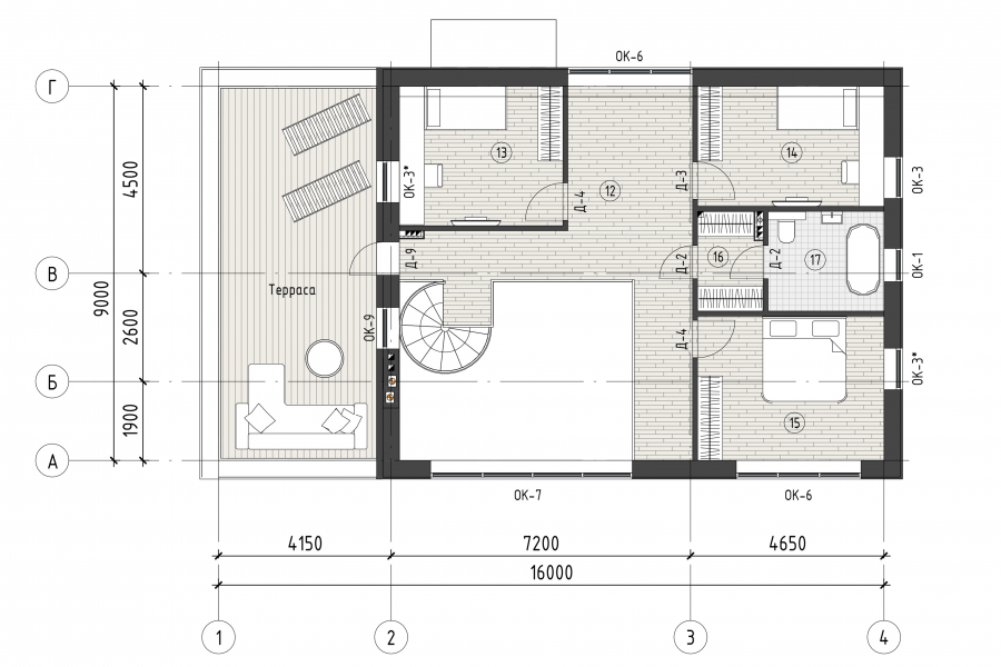
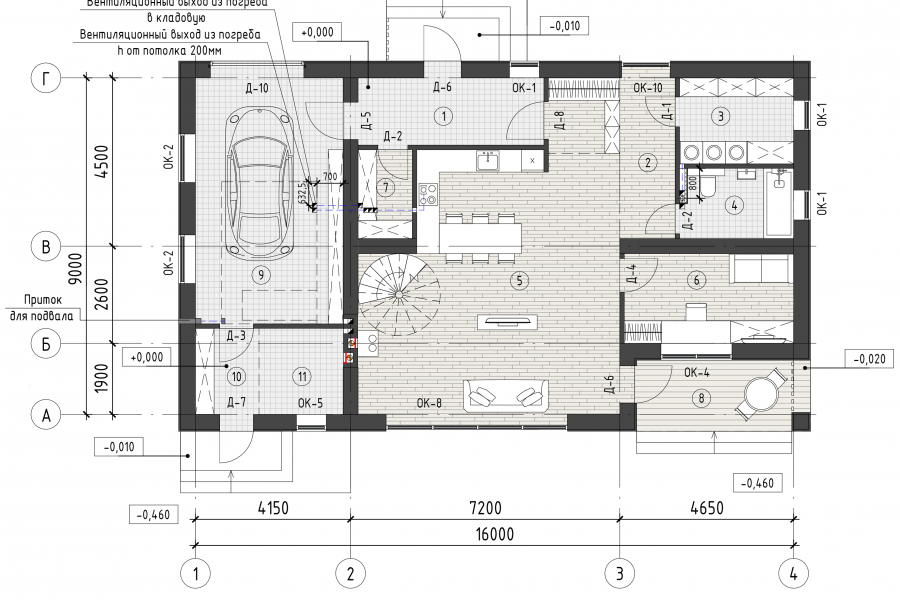
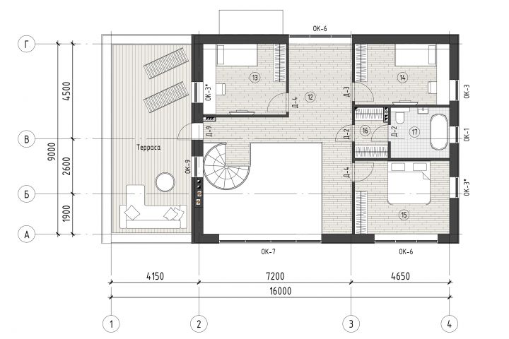
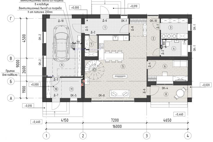
Рабочий проект жилого дома 250кв.м. (2 этажа)
Двускатная крыша, второй свет, 3 спальни, гараж в тепловом контуре. Материал стен: Твинблок.

Состав альбома (49 листов):
• Ведомости рабочих чертежей
• Планы этажей с расстановкой мебели
• План фундамента
• Разрезы по фундаменту
• План подушки фундамента
• Узлы фундамента
• План погреба
• Узлы армирования
• Планы плит перекрытий и монолитных участков
• Планы инженерных коммуникаций
• Кладочные планы
• Армирование лестниц
• Узлы отмостки
• Армирование колонн
• Схемы кладки стен
• Планы балок и перемычек
• Ведомости дверных и оконных проемов
• Планы полов
• План кровли
• Схема конструкции кровли
• Схема ферм
• Кладочные фасады
• Спецификации основных материалов

Рабочий проект жилого дома 250кв.м. (2 этажа)
Рабочий проект жилого дома 250кв.м. (2 этажа)
Рабочий проект жилого дома 250кв.м. (2 этажа)