Рейтинг: 93
не верифицирован
Всего отзывов: 0
  • Работ в портфолио: 8
  • Типовых услуг: 0
  • Работ на продажу: 3
Была на сайте:

Продаю: Проект сельского клуба

2 000 руб

17

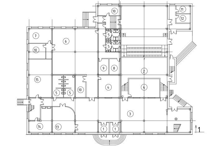
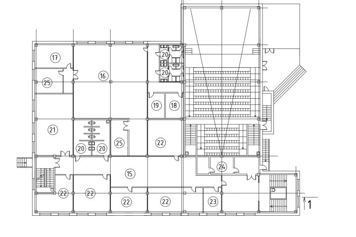
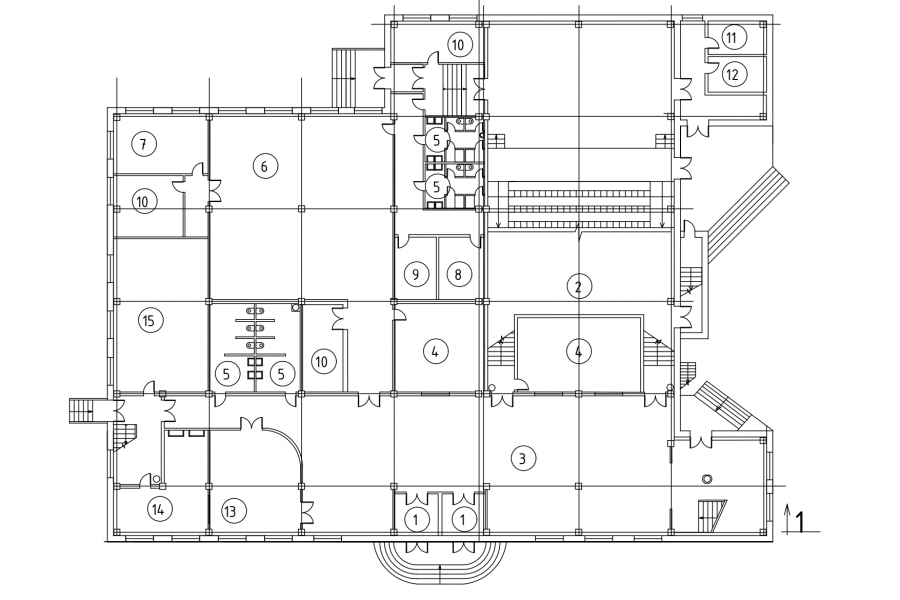
Курсовой проект сельского клуба или театра. Включает в себя DWG файл с планами, фасадами, разрезами, план фундамента, перекрытия и генеральный план. Проект является учебным.

Проект сельского клуба
Проект сельского клуба