Рейтинг: 93
не верифицирован
Всего отзывов: 0
  • Работ в портфолио: 8
  • Типовых услуг: 0
  • Работ на продажу: 3
Была на сайте:

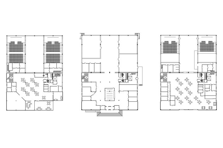
Продаю: Проект общественного центра с бутиками, кинотеатром и кафе

500 руб

9

Чертежный проект в формате DWG 3 этажного торгово-развлекательного центра. Включает в себя план трех этажей, разрез и фасад.
Проект является эскизным и требует инженерных доработок для строительства.

Проект общественного центра с бутиками, кинотеатром и кафе