Рейтинг: 115
не верифицирован
Всего отзывов: 0
  • Работ в портфолио: 0
  • Типовых услуг: 1
  • Работ на продажу: 11
  • Возраст: 39 лет
  • Зарегистрирован: 07.11.2019
Был на сайте:

Продаю: Проект каркасного дома для самостоятельной сборки

9 900 руб
Доработка: 500 руб

12

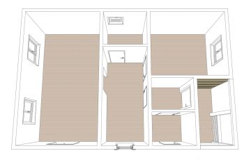
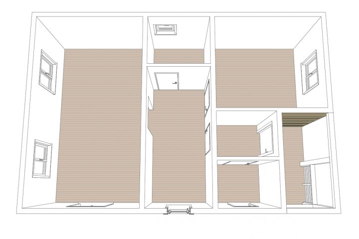
Продаю готовый проект каркасного дома для самостоятельной сборки. В проект входят: Макет (3Д модель) с планами этажей, фасадами, разрезами и пр. Спецификация материалов с чертежами досок (раскрой). Чертежи для самостоятельной поэтапной сборки от обвязки до стропил. Чертежи выполнены для простых людей, не имеющих архитектурного образования.

Проект каркасного дома для самостоятельной сборки
Проект каркасного дома для самостоятельной сборки
Проект каркасного дома для самостоятельной сборки