Кто если не ты!

Marfast . marfast

Top 10
Рейтинг: 9 087
не верифицирован
Всего отзывов: 3 1
Профессионализм: 10 Коммуникация: 10
Выполнила заданий: 5
  • Надежность: Использовала: Работала по Безопасной сделке
  • Работ в портфолио: 8
  • Типовых услуг: 1
  • Работ на продажу: 2
  • Образование: Магистратура
  • Тип занятости: Полный фриланс
  • Юридический статус:Самозанятый
Была на сайте:

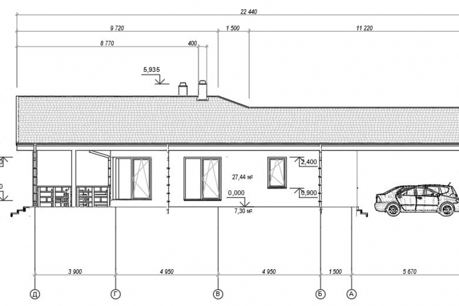
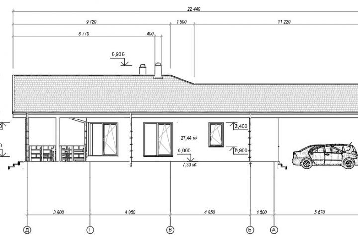
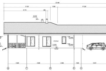
Продаю: Проект индивидуального жилого дома №1.

10 000 руб
Доработка: 10 000 руб

40

Предлагаю проект индивидуального жилого дома. В проект входит раздел АР и КР. Дом одноэтажный с пристроенной террасой и автомобильным навесом на 2 автомобиля. Фундамент, монолитная плита, стены выполнены из блоков, кровля- деревянная стропильная система.

Проект индивидуального жилого дома №1.
Проект индивидуального жилого дома №1.