Ценность ПР в экономической и конструктивной целесообразности

ВладиМир Козубовский victorosip

Рейтинг: 2 597
не верифицирован
Всего отзывов: 20 1
Профессионализм: 10 Коммуникация: 9
Выполнил заданий: 43
  • Работ в портфолио: 82
  • Типовых услуг: 0
  • Работ на продажу: 2
  • Возраст: 58 лет
  • Стаж работы: 30 лет
  • Зарегистрирован: 29.05.2017
  • Образование: Бакалавриат
  • Юридический статус:Частное лицо
Был на сайте:

Продаю: Проект дома ИЖС_КР-Р. Жилая площадь 104,1 м²

20 000 руб
Доработка: 30 000 руб

32

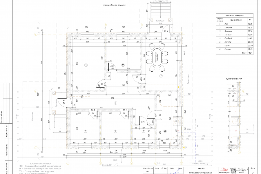
ИЖС ИЖС_КР-Р. 12х12/1эт.
Газоблок / Кирпич
Свая буронабивноя, ростверк, монолитная плита перекрытия.
Кровля -гибкая черепица.
Площадь застройки 151,2 м²
Площадь полезная 12,65 м²
Площадь жилая 104,1 м²
Площадь общая 116,75 м²
Ведомость чертежей основного комплекта КР:
1. Фасад А-В; В-А
2. Фасад 1-7; 7-1
3. Планировочное решение
4. Свайное поле
5. Ростверк
6. Плита монолитная
7. План отмостки
8. Кладочный план
9. Разрез 1-1
10. Разрез 2-2
11. Ленточный пояс
12. Мауэрлат
13. План балочной системы
14. План стропильной системы
15. Смежные конструкции свеса крыши
16. Ведомости заполнения проёмов; Ведомость отделки
17. Сводная спецификация материалов

- Стоимость доработки зависит от объёма проектных работ, уточню после обсуждения ТЗ

Проект дома ИЖС_КР-Р. Жилая площадь 104,1 м²
Проект дома ИЖС_КР-Р. Жилая площадь 104,1 м²
Проект дома ИЖС_КР-Р. Жилая площадь 104,1 м²