Рейтинг: 73
не верифицирован
Всего отзывов: 0
  • Работ в портфолио: 3
  • Типовых услуг: 0
  • Работ на продажу: 6
Был на сайте:

Продаю: Готовый архитектурно-строительный проект 1-этажного дома с террасой

15 000 руб
Доработка: 1 000 руб

13

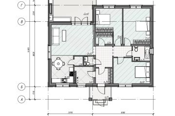
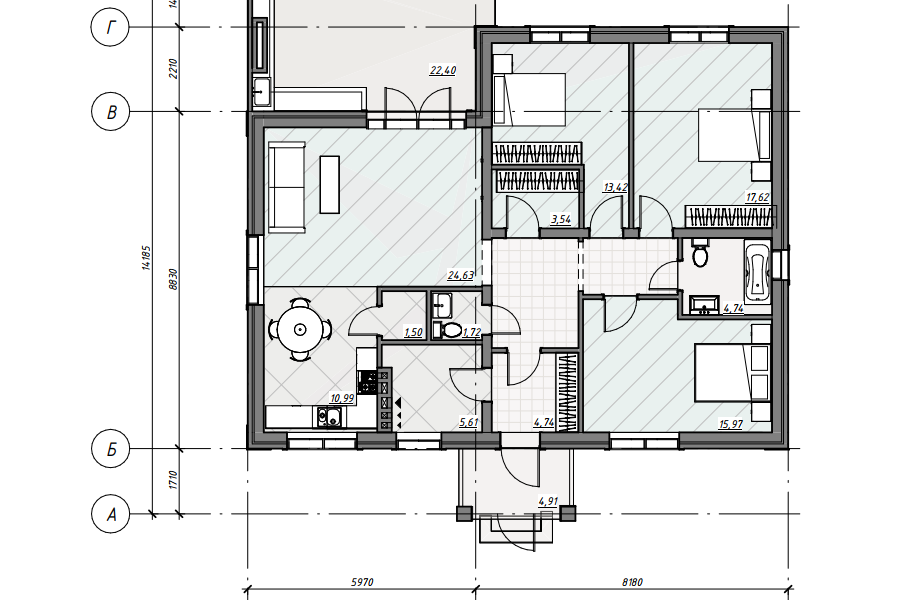
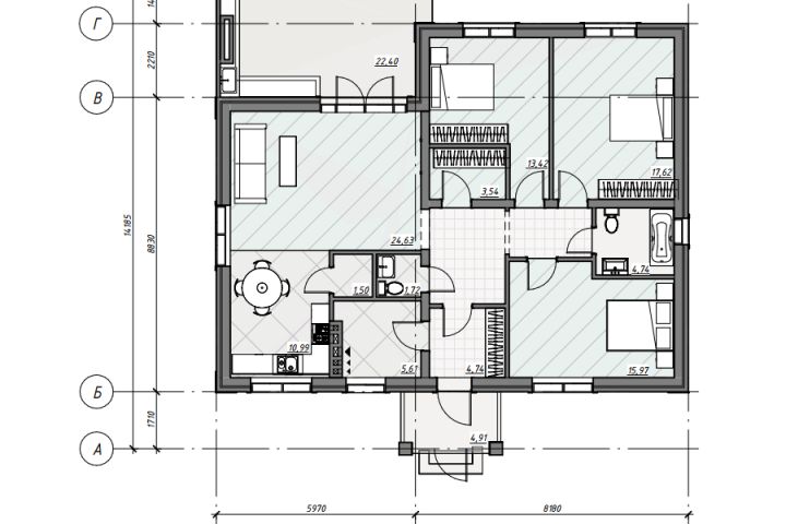
Готовый проект 1- этажного дома с террасой. Общей площадью - 142 кв.м. Стены толщиной - 420мм (Г.б+ кирпич). Проект включает в себя архитектурную часть (планы, фасады, разрезы), а так же чертежи по конструктивной части с основными узлами и с указанием расхода материалов.

Готовый архитектурно-строительный проект 1-этажного дома с террасой
Готовый архитектурно-строительный проект 1-этажного дома с террасой