Продаю: Эскизный проект дома - готовая работа на продажу :6327
Для полной функциональности этого сайта необходимо включить JavaScript.
Freelance.Ru
Торговый центр
Работы на продажу mari005f
Эскизный проект дома
На сайте с: 20.04.2022
Мария Федякова
mari005f
Рейтинг: 25
не верифицирован
Всего отзывов:
0
Работ в портфолио:
0
Типовых услуг:
0
Работ на продажу:
1
Был на сайте:
2022-09-22 в 15:01
inbox
Предложить работу
Добавить в избранное
Добавить рекомендацию
Пожаловаться
Дизайн пространства
Продаю: Эскизный проект дома
20 000 руб
11
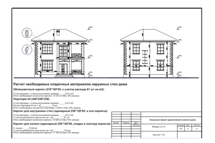
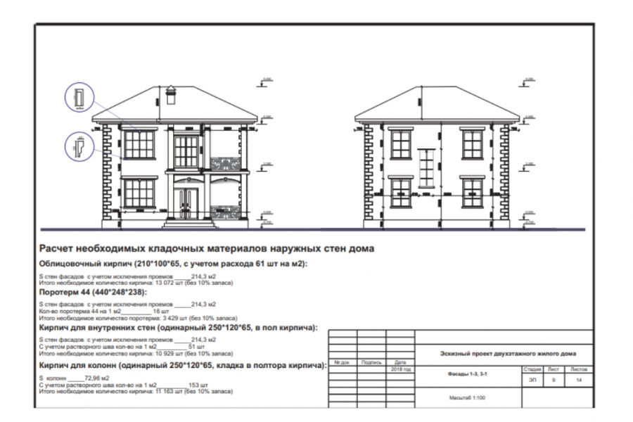
Продам проект 2-х этажного жилого дома с рабочими чертежами и расчетами
‹
›
×
FREELANCE.RU
Toggle navigation
Нанять фрилансера
Заказчику
Найти по специализации
Найти по услугам
Провести конкурс
Разместить задание
Виртуальный HR
Другое
Найти работу
Фрилансеру
Найти задание
Присоединиться к команде
Участвовать в конкурсе
Другое
Возможности
Для заказчика
Для фрилансера
Вход
Разместить задание
▲