Рейтинг: 1 650
Паспорт верифицирован
Всего отзывов: 63 1
Профессионализм: 10 Коммуникация: 10
Выполнил заданий: 67
  • Надежность: Использовал: Работал по Безопасной сделке
  • Работ в портфолио: 82
  • Типовых услуг: 13
  • Работ на продажу: 0
  • Возраст: 48 лет
  • Стаж работы: 25 лет
  • Зарегистрирован: 27.05.2012
  • Образование: Cпециалитет
  • Юридический статус:Частное лицо
  • Стоимость услуг (руб): 1 000 за час 100 000 за месяц
Был на сайте:

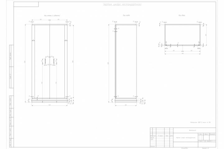
чертеж нестандартного шкафа

Используемые навыки:

Описание

необходимо было по общим наброскам создать чертеж нестандартного шкафа

инструментарий: AutoCAD, Adobe ILLUSTRATOR

Ссылки на примеры реализации

 www.behance.net/gallery/116192761/chertezh-shkafa-...

Презентация проекта

pic4091535.jpg
1-01.png
1-02.png
1-03.png

Оценили проект:

0