Рейтинг: 1 750
Паспорт верифицирован
Всего отзывов: 63 1
Профессионализм: 10 Коммуникация: 10
Выполнил заданий: 67
  • Надежность: Использовал: Работал по Безопасной сделке
  • Работ в портфолио: 82
  • Типовых услуг: 13
  • Работ на продажу: 0
  • Возраст: 48 лет
  • Стаж работы: 25 лет
  • Зарегистрирован: 27.05.2012
  • Образование: Cпециалитет
  • Юридический статус:Частное лицо
  • Стоимость услуг (руб): 1 000 за час 100 000 за месяц
Был на сайте:

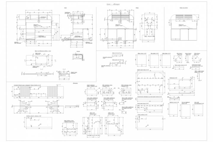
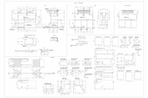
чертеж кухни для автодома

Используемые навыки:

Описание

необходимо было по имеющимся черновикам создать чертеж кухни для автодома, произвести деталировку и подготовить чертежи отдельных деталей для резки на станке ЧПУ

инструментарий - AutoCAD, Adobe Illustrator

Ссылки на примеры реализации

 www.behance.net/gallery/124086495/chertezh-kuhni-d...

Презентация проекта

pic4167290.jpg
Кухонный блок 4.0.png
для ЧПУ - Кухонный блок 4.0.png
Кухонный блок 6.0 (дополнение).png
для ЧПУ - Кухонный блок 6.0 (дополнение).png

Оценили проект:

0