Рейтинг: 1 740
Паспорт верифицирован
Всего отзывов: 61 1
Профессионализм: 10 Коммуникация: 10
Выполнил заданий: 66
  • Надежность: Использовал: Работал по Безопасной сделке
  • Работ в портфолио: 82
  • Типовых услуг: 13
  • Работ на продажу: 0
  • Возраст: 48 лет
  • Стаж работы: 25 лет
  • Зарегистрирован: 27.05.2012
  • Образование: Cпециалитет
  • Юридический статус:Частное лицо
  • Стоимость услуг (руб): 1 000 за час 20 000 за месяц
Был на сайте:

чертежи частного дома

Используемые навыки:

Описание

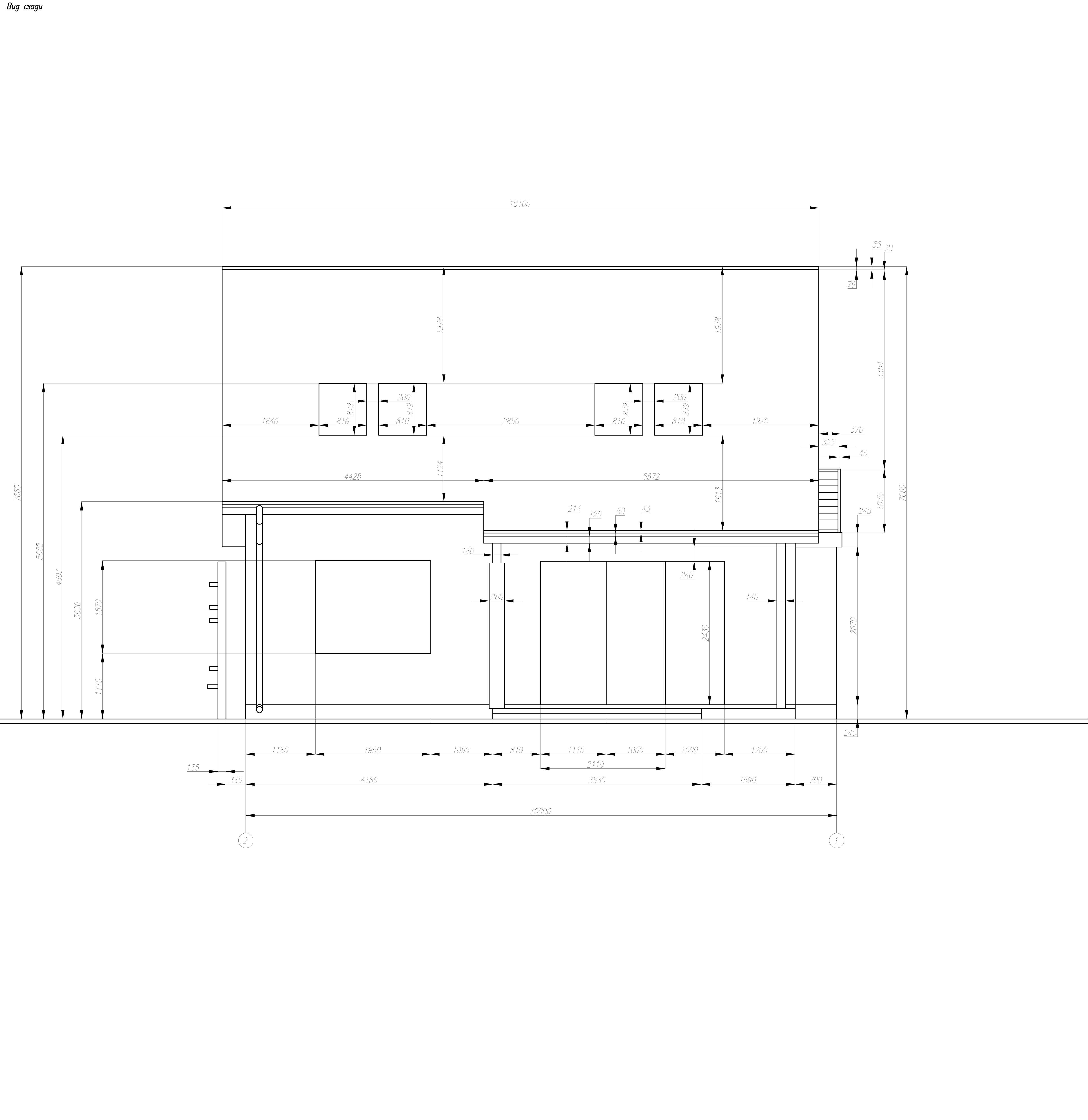
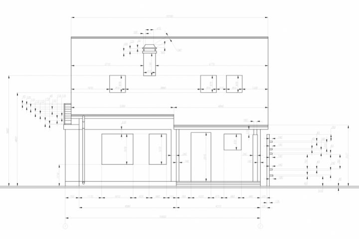
необходимо было по общим наброскам отчертить различные виды дома и проставить размеры

инструментарий: AutoCAD, Adobe PHOTOSHOP

Презентация проекта

pic4045732.jpg
1 Вид спереди.png
2 Вид сзади.png
3 Вид слева.png
4 Вид справа.png
5 1 этаж.png
6 мансарда.png

Оценили проект:

1