СПЕЦИАЛИЗИРУЮСЬ НА ДИЗАЙНЕ И ДЕКОРИРОВАНИИ ИНТЕРЬЕРОВ

Светлана Люзина luzinasvetlana

Рейтинг: 3 486
Паспорт верифицирован
Всего отзывов: 8 0
Профессионализм: 10 Коммуникация: 10
Выполнила заданий: 8
  • Работ в портфолио: 179
  • Типовых услуг: 6
  • Работ на продажу: 0
  • Стаж работы: 28 лет
  • Зарегистрирован: 08.07.2020
  • Образование: Магистратура
  • Юридический статус:ИП
  • Стоимость услуг (руб): 1 000 за час 100 000 за месяц
Была на сайте:

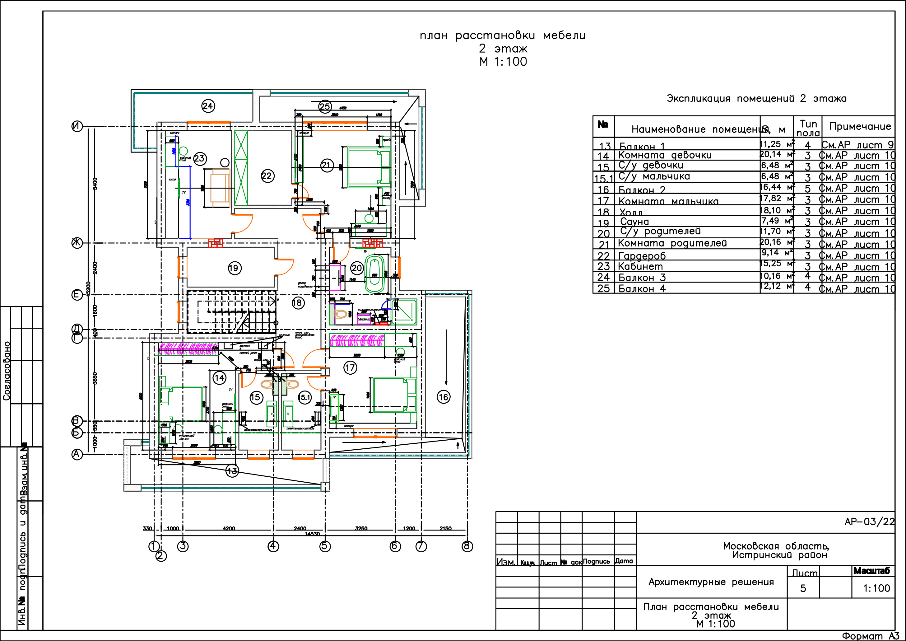
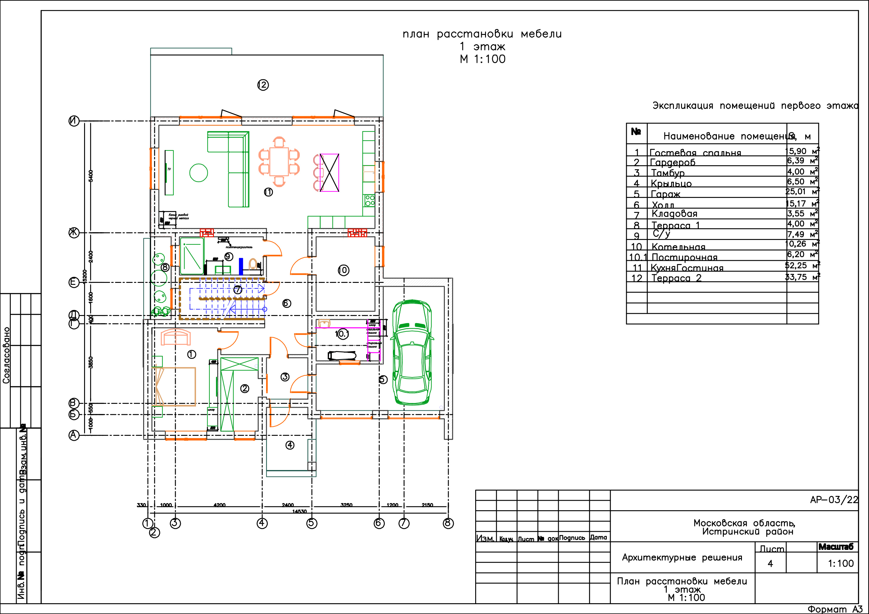
Дизайн интерьеров современного 2-х этажного дома

Описание

Двухэтажный дом для семьи с 2-мя взрослыми детьми.Создание современного ,отлично организованного пространства помещений,где есть возможность собраться всем вместе и также есть своя зона для жизни и работы у каждого члена семьи.Функциональный кабинет 2 этажа,3 спальни ,3 санузла,кухня с островом, вместительная постирочная. Разные сценарии освещения-приглушенный вечерний свет и яркий ,повседневный

Решение

Зонировала помещения на зону родителей с гардеробной и большой ванной и детские комнаты,каждая со своим санузлом .Сделала свободные выходы на веранду на первом этаже (окна в пол). Освещение современное ,может быть вечерним,неярким или ярким,как дневной свет( 2 сценария освещения)

Результат

Результатом работы ,сроком 40 дней,стал проект интерьеров ,соответствующий запросу хозяев дома.После завершения проекта перешли к его воплощению

Презентация проекта

1этаж Павлово.jpg
2 этаж Павлово.jpg
1 (2).jpg
3 (2).jpg
13 .jpg
14 .jpg
3 .jpg
7 .jpg
6 .jpg
Детская мальчика1.jpg

Оценили проект:

0