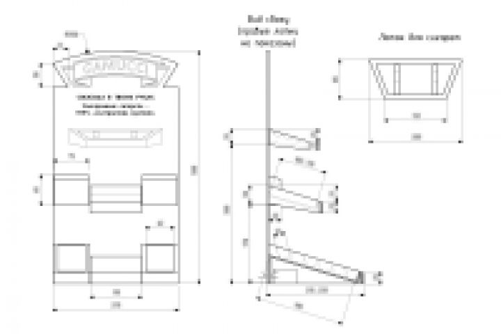
Схема I
Для полной функциональности этого сайта необходимо включить JavaScript.
Киев
Удобство, как, впрочем, и многое другое, кроется в мелочах.
Юрий Волков
yu-v
Рейтинг: 215
не верифицирован
Всего отзывов:
9
1
Опубликовал заданий:
13
Работ в портфолио:
189
Типовых услуг:
0
Работ на продажу:
0
Возраст:
48 лет
Зарегистрирован:
25.04.2008
Был на сайте:
2020-12-23 в 01:35
Предложить работу
Добавить в избранное
Добавить рекомендацию
Пожаловаться
Инженерия
31
0
Схема I
Используемые навыки:
Чертежи/Схемы
Описание
Решение
Результат
Соавторы
Презентация проекта
Примеры реализации
Описание
Презентация проекта
Оценили проект:
0
×
Оценили проект
×
Авторизация
Для того чтобы оценивать проекты, вам нужно войти на сайт
Другие проекты
Все проекты
Формочки для теста
Нейтральное оборудование - 2
ДКС
FREELANCE.RU
Toggle navigation
Нанять фрилансера
Заказчику
Найти по специализации
Найти по услугам
Провести конкурс
Разместить задание
Виртуальный HR
Найти студию
Другое
Найти работу
Фрилансеру
Найти задание
Присоединиться к команде
Участвовать в конкурсе
Предложить услугу
Другое
Возможности
Для заказчика
Для фрилансера
Вход
Разместить задание
▲