Рейтинг: 1 635
не верифицирован
Всего отзывов: 5 0
Выполнила заданий: 7
  • Активность:
  • Работ в портфолио: 162
  • Типовых услуг: 17
  • Работ на продажу: 0
  • Образование: Cпециалитет
  • Стаж работы: 14 лет
Была на сайте:

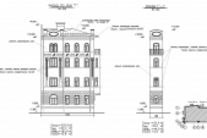
Проект капитального ремонта жилого дома (часть АР)

Описание

Памятник архитектуры в стиле Модерн, располагается на Новом Арбате г.Москва

Презентация проекта

pic2817073.jpg

Оценили проект:

0