Рейтинг: 2 313
Паспорт верифицирован
Всего отзывов: 2 0
  • Активность:
  • Работ в портфолио: 9
  • Типовых услуг: 0
  • Работ на продажу: 0
  • Стаж работы: 17 лет
  • Зарегистрирован: 09.02.2011
  • Образование: Cпециалитет
  • Юридический статус:Самозанятый
  • Стоимость услуг (руб): 1 000 за час 70 000 за месяц
Был на сайте:

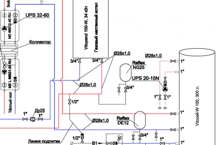
Проектирование котельной частного дома

Описание

Проектирование и реализация инженерного проекта котельной для частного дома - это сложный и многопроходный процесс, который включает в себя несколько этапов. Ниже приведены этапы работ, проведенные нашей компанией:

Анализ потребностей и требований клиента:

Проведение встречи с владельцем дома для определения его потребностей в отоплении и горячем водоснабжении.
Определение требуемой мощности котельной и других технических характеристик.

Подготовка технического задания:

Составление технического задания на основе анализа потребностей клиента.
Учет нормативов и стандартов в области теплоснабжения и энергосбережения.

Проектирование системы отопления и горячего водоснабжения:

Разработка инженерного проекта котельной с учетом всех технических параметров.
Выбор оптимального оборудования, такого как котлы, насосы, системы управления и др.
Проектирование трубопроводной системы и радиаторов/пола для отопления.

Энергетический аудит:

Проведение энергетического аудита для оптимизации энергопотребления и повышения эффективности системы.
Разработка схемы согласования с органами по техническому регулированию:

Согласование проекта с местными органами и получение необходимых разрешений.

Проведение строительных работ:

Подготовка места для размещения котельной.
Установка оборудования и монтаж трубопроводов.
Прокладка электропроводки и системы управления.

Наладка и тестирование:

Проведение тестовых испытаний системы.
Настройка оборудования для оптимальной работы.
Обучение пользователя:

Проведение обучения владельца дома по эксплуатации и обслуживанию системы.

Сдача проекта и документация:

Передача системы клиенту.
Подготовка технической документации и инструкций по эксплуатации.

Гарантийное обслуживание и поддержка:

Предоставление гарантийного обслуживания.
Организация технической поддержки и регулярного обслуживания.

Презентация проекта

pic4527132.jpg

Оценили проект:

0