Рейтинг: 156
не верифицирован
Всего отзывов: 3 0
Выполнил заданий: 5
  • Активность:
  • Работ в портфолио: 81
  • Типовых услуг: 0
  • Работ на продажу: 0
  • Зарегистрирован: 18.05.2012
Был на сайте:

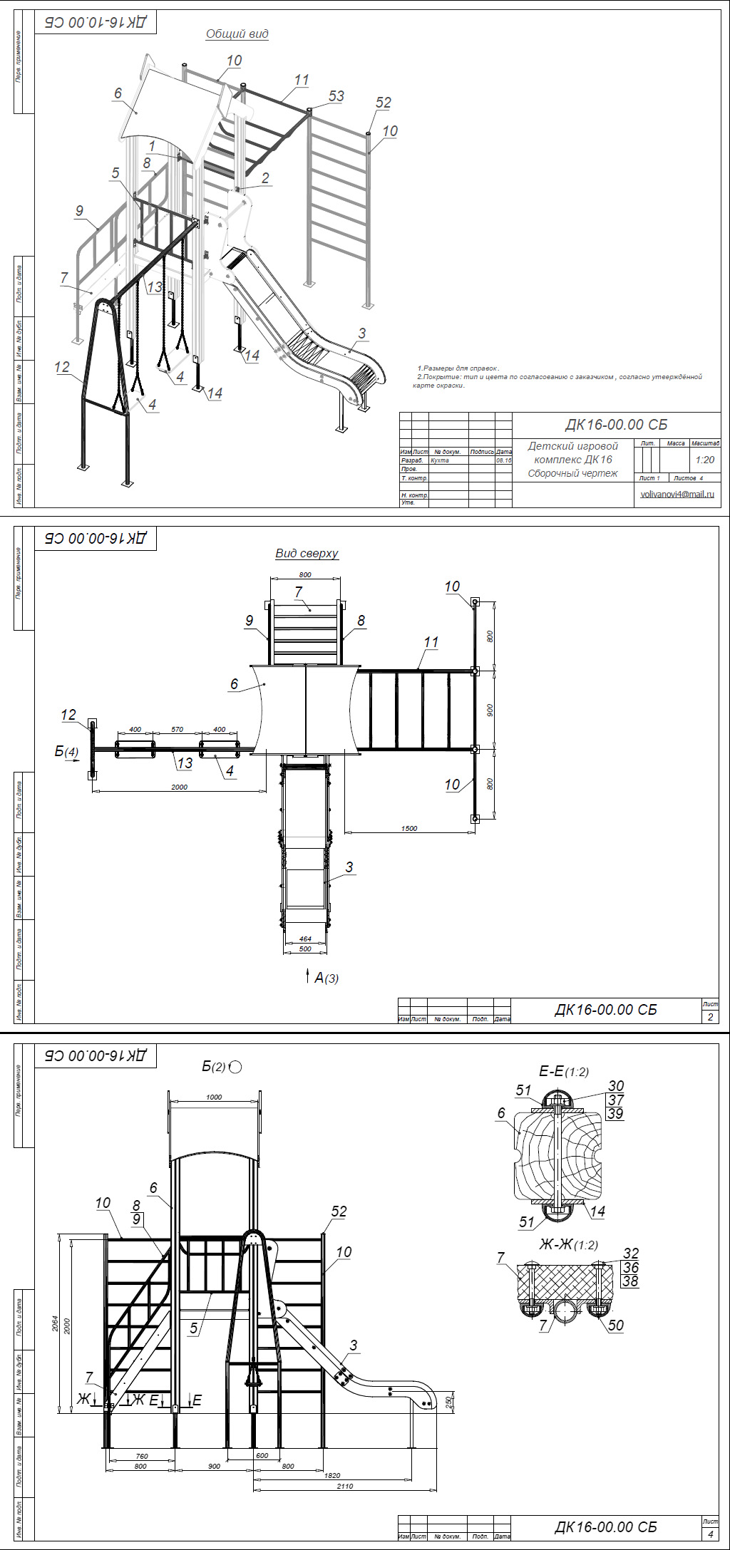
Детский игровой комплекс 02

Используемые навыки:

Описание

Детский игровой комплекс площадка горка лаз лестница качели
башня комплект документации изготовление производство КД сборочные
чертежи детали

Презентация проекта

pic2973246.jpg

Оценили проект:

0