Интерьер отражает личность. Дизайн выражает чувства.

Ольга Ерофеева ollya

Рейтинг: 85
Паспорт верифицирован
Всего отзывов: 2 0
Выполнила заданий: 2
  • Работ в портфолио: 20
  • Типовых услуг: 0
  • Работ на продажу: 0
  • Зарегистрирован: 03.01.2022
Была на сайте:

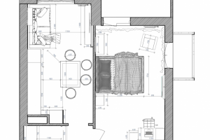
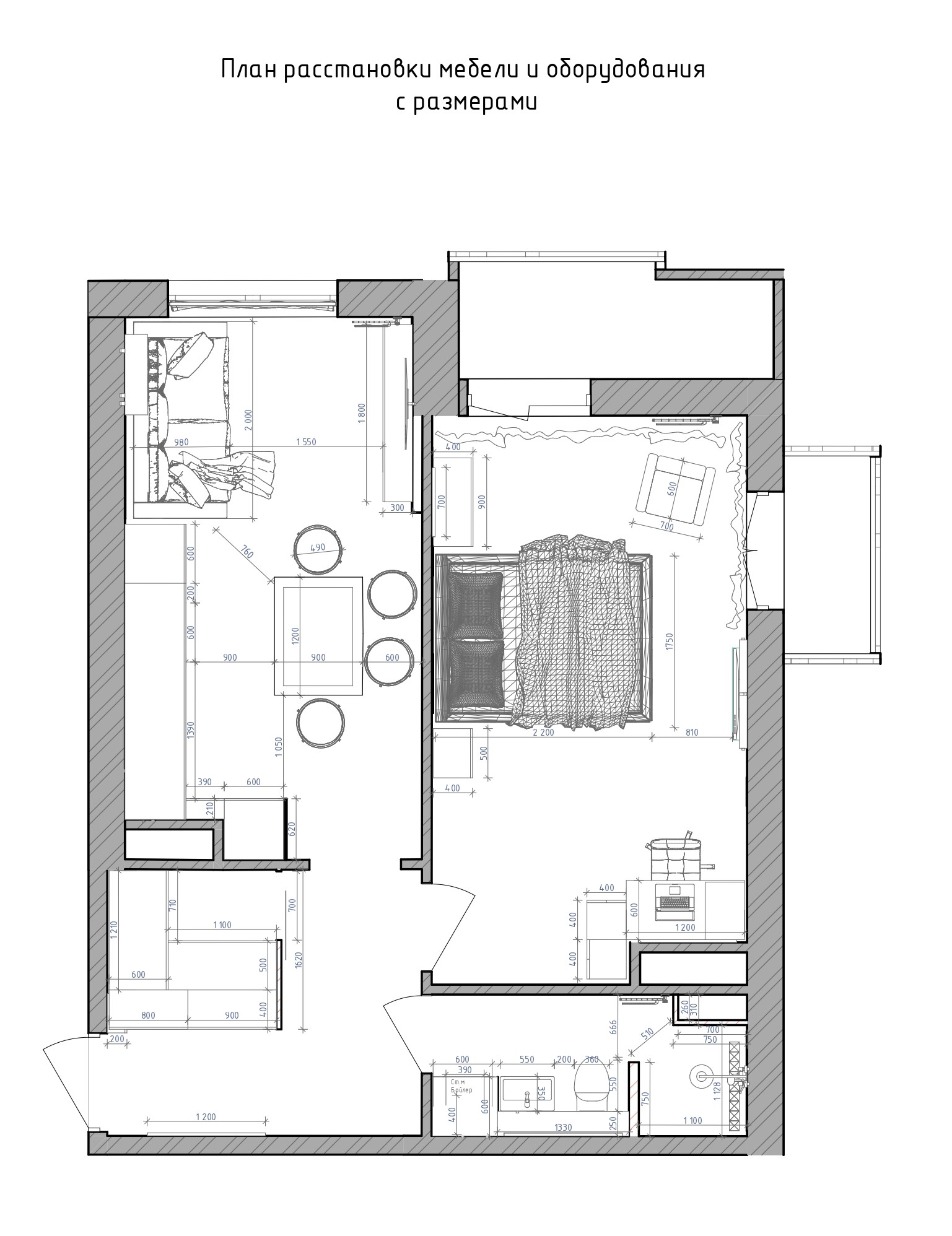
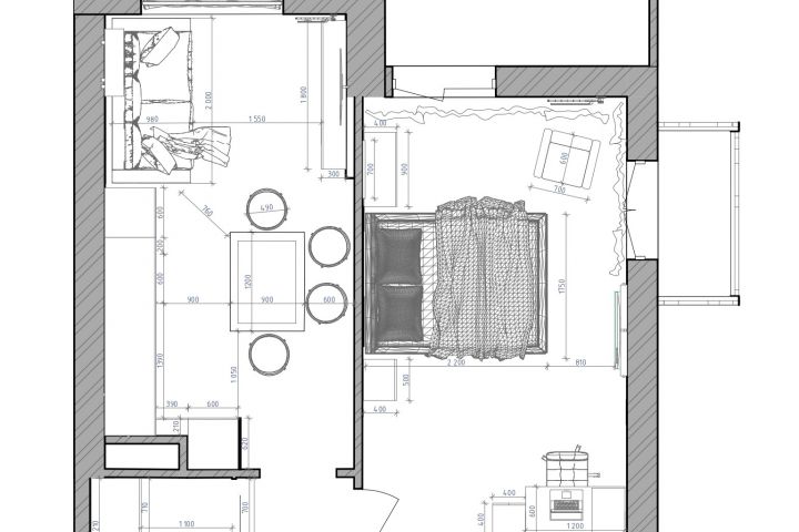
Планировочное решение 1к квартиры

Используемые навыки:

Описание

Молодой человек после приобретения квартиры хотел изменить расположение кухни - перенести ее на место жилой. при этом основным запросом Заказчика было создание функционального, эргономичного пространства. Совмещенная кухня-гостиная, где можно будет отдохнуть, спальня с рабочим местом.
Данное планировочное решение позволило сохранить изначальную планировку квартиры и раскрыть ее функциональность, избежать ненужных и невозможных согласований, сократить финансовые и временные расходы Заказчика.

Презентация проекта

pic4587776.jpg

Оценили проект:

0