Десткое дошкольное учереждение
Для полной функциональности этого сайта необходимо включить JavaScript.
Волгоград
На сайте с: 15.09.2009
DDDmitry
Рейтинг: 44
не верифицирован
Всего отзывов:
1
0
Выполнено заданий:
1
Работ в портфолио:
9
Типовых услуг:
0
Работ на продажу:
0
Был на сайте:
2021-12-20 в 16:45
inbox
Предложить работу
Добавить в избранное
Добавить рекомендацию
Пожаловаться
Инженерия
18
0
Десткое дошкольное учереждение
Используемые навыки:
Теплоснабжение/Отопление/Вентиляция
Описание
Решение
Результат
Соавторы
Презентация проекта
Примеры реализации
Описание
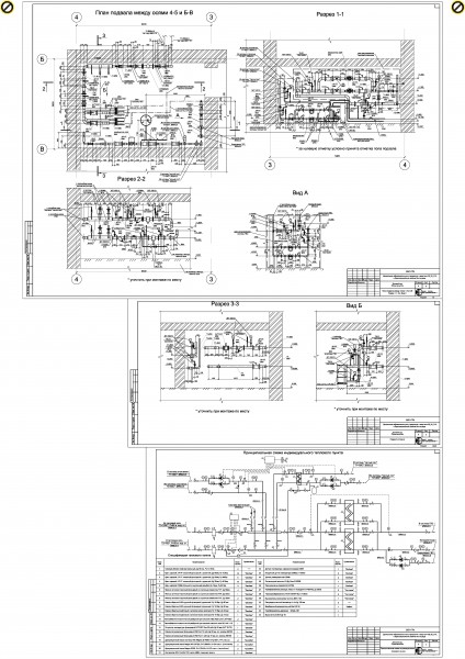
ИТП садика
Презентация проекта
Оценили проект:
0
×
Оценили проект
×
Авторизация
Для того чтобы оценивать проекты, вам нужно войти на сайт
Другие проекты
Все проекты
Газоснабжения поселка Великий Октябрь
УУТЭ ДДУ
Цех литья алюминевой посуды. ГСВ
FREELANCE.RU
Toggle navigation
Нанять фрилансера
Заказчику
Найти по специализации
Найти по услугам
Провести конкурс
Разместить задание
Виртуальный HR
Другое
Найти работу
Фрилансеру
Найти задание
Присоединиться к команде
Участвовать в конкурсе
Предложить услугу
Другое
Возможности
Для заказчика
Для фрилансера
Вход
Разместить задание
▲