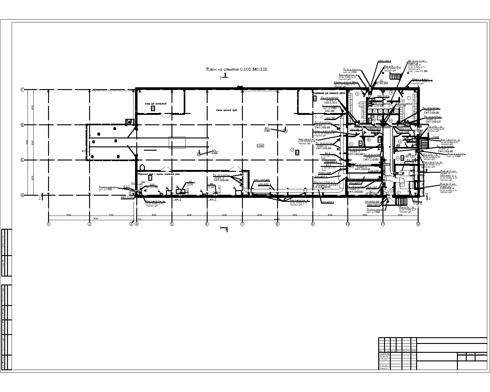
ОВ-8
Для полной функциональности этого сайта необходимо включить JavaScript.
Инженер-технолог
Тимур Доля
besik38
Рейтинг: 128
не верифицирован
Всего отзывов:
1
0
Выполнил заданий:
2
Работ в портфолио:
53
Типовых услуг:
0
Работ на продажу:
0
Возраст:
42 года
Зарегистрирован:
25.02.2014
Был на сайте:
2022-04-21 в 03:52
inbox
zero_hour_08@mail.ru
Предложить работу
Добавить в избранное
Добавить рекомендацию
Пожаловаться
Инженерия
47
0
ОВ-8
Используемые навыки:
Теплоснабжение/Отопление/Вентиляция
Описание
Решение
Результат
Соавторы
Презентация проекта
Примеры реализации
Описание
Презентация проекта
Оценили проект:
0
×
Оценили проект
×
Авторизация
Для того чтобы оценивать проекты, вам нужно войти на сайт
Другие проекты
Все проекты
План электрической сети 2 этаж (Охотничий домик)
Перенос сетей
Освещение (План 1-го этажа)
FREELANCE.RU
Toggle navigation
Нанять фрилансера
Заказчику
Найти по специализации
Найти по услугам
Провести конкурс
Разместить задание
Виртуальный HR
Найти студию
Другое
Найти работу
Фрилансеру
Найти задание
Присоединиться к команде
Участвовать в конкурсе
Предложить услугу
Другое
Возможности
Для заказчика
Для фрилансера
Вход
Разместить задание
▲