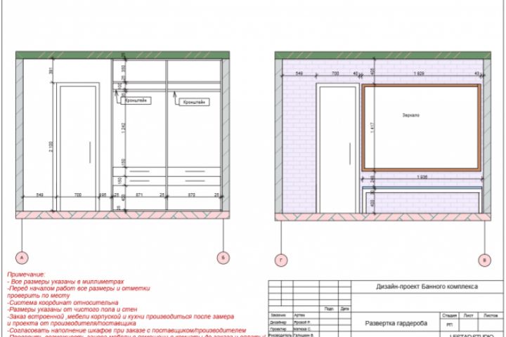
Развертки стен
Для полной функциональности этого сайта необходимо включить JavaScript.
Киев
LESTAD STUDIO - воплощение Ваших идей
LESTAD STUDIO
webmasterignatenko
Рейтинг: 363
не верифицирован
Всего отзывов:
37
0
Выполнил заданий:
29
Опубликовал заданий:
43
Работ в портфолио:
116
Типовых услуг:
0
Работ на продажу:
0
Зарегистрирован:
10.06.2014
Был на сайте:
2022-04-27 в 14:31
Предложить работу
Добавить в избранное
Добавить рекомендацию
Пожаловаться
Инженерия
45
0
Развертки стен
Используемые навыки:
Чертежи/Схемы
Описание
Решение
Результат
Соавторы
Презентация проекта
Примеры реализации
Описание
Презентация проекта
Оценили проект:
0
×
Оценили проект
×
Авторизация
Для того чтобы оценивать проекты, вам нужно войти на сайт
Другие проекты
Все проекты
План розеток
Моделирование офисных столов
3D модель камина
FREELANCE.RU
Toggle navigation
Нанять фрилансера
Заказчику
Каталог фрилансеров
Каталог PRO
Каталог студий
Каталог услуг
Каталог работ
Виртуальный HR
Умный поиск
Провести конкурс
Разместить задание
Найти работу
Найти задание
Присоединиться к команде
Участвовать в конкурсе
Предложить услугу
Вход
Разместить задание
▲