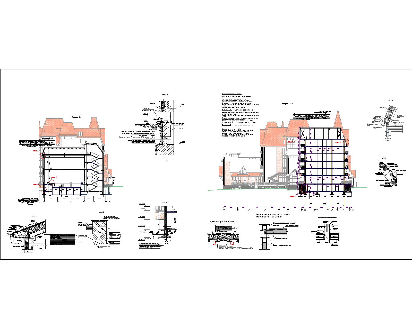
Разрезы. Больничка
Для полной функциональности этого сайта необходимо включить JavaScript.
Москва
Сергей Анкуда
sv200278
Рейтинг: 92
не верифицирован
Всего отзывов:
4
0
Выполнил заданий:
2
Опубликовал заданий:
2
Нейросаммари
Работ в портфолио:
12
Типовых услуг:
0
Работ на продажу:
0
Зарегистрирован:
26.06.2012
Был на сайте:
2026-03-10 в 12:23
Предложить работу
Добавить в избранное
Добавить рекомендацию
Пожаловаться
Инженерия
29
0
Разрезы. Больничка
Используемые навыки:
Промышленное и гражданское строительство
Описание
Решение
Результат
Соавторы
Презентация проекта
Примеры реализации
Описание
Презентация проекта
Оценили проект:
0
×
Оценили проект
×
Авторизация
Для того чтобы оценивать проекты, вам нужно войти на сайт
Другие проекты
Все проекты
Проект Организации Строительства
Конструктивный расчет. Лира и SCAD
Конструкции металлические
FREELANCE.RU
Toggle navigation
Нанять фрилансера
Заказчику
Найти по специализации
Найти по услугам
Провести конкурс
Разместить задание
Виртуальный HR
Найти студию
Другое
Найти работу
Фрилансеру
Найти задание
Присоединиться к команде
Участвовать в конкурсе
Предложить услугу
Другое
Возможности
Для заказчика
Для фрилансера
Вход
Разместить задание
▲