Схема канализации
Для полной функциональности этого сайта необходимо включить JavaScript.
Россия
StroyPro52
fakaskin
Рейтинг: 4 596
не верифицирован
Всего отзывов:
3
0
Профессионализм:
5
Коммуникация:
1
Выполнил заданий:
9
Нейросаммари
Надежность:
Использовал:
Работал по Безопасной сделке
Работ в портфолио:
27
Типовых услуг:
0
Работ на продажу:
0
Зарегистрирован:
24.05.2023
Образование:
Бакалавриат
Стоимость услуг (руб):
2 500
за час
500 000
за месяц
Был на сайте:
2026-03-04 в 13:32
+79026817904
inbox
telegram
whatsapp
stroypro52.ru
Предложить работу
Добавить в избранное
Добавить рекомендацию
Пожаловаться
Инженерия
114
0
Схема канализации
Используемые навыки:
Водоснабжение и водоотведение
Описание
Решение
Результат
Соавторы
Презентация проекта
Примеры реализации
Описание
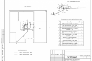
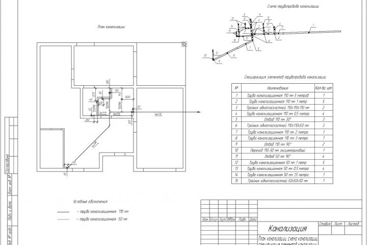
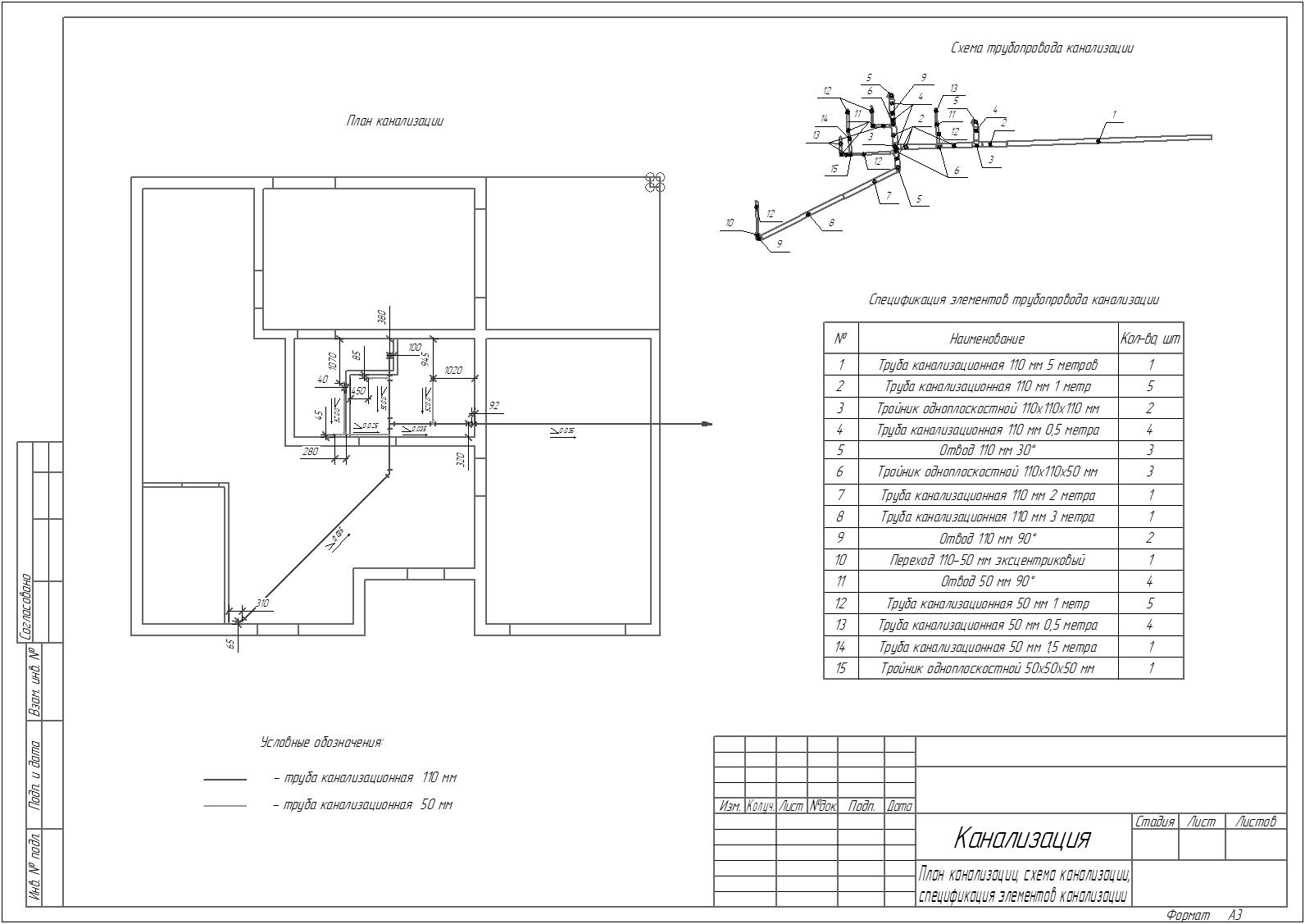
Схема канализации частного дома
Презентация проекта
Оценили проект:
0
×
Оценили проект
×
Авторизация
Для того чтобы оценивать проекты, вам нужно войти на сайт
Другие проекты
Все проекты
Схема участка у реки
Раздел "Конструкции металлические"
Модульное здание для размещения офисов (Раздел АР и КР)
FREELANCE.RU
Toggle navigation
Нанять фрилансера
Заказчику
Найти по специализации
Найти по услугам
Провести конкурс
Разместить задание
Виртуальный HR
Найти студию
Другое
Найти работу
Фрилансеру
Найти задание
Присоединиться к команде
Участвовать в конкурсе
Предложить услугу
Другое
Возможности
Для заказчика
Для фрилансера
Вход
Разместить задание
▲