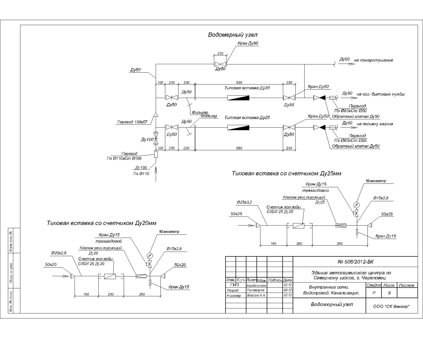
НВК и ВК частного жилого дома
Для полной функциональности этого сайта необходимо включить JavaScript.
Череповец
На сайте с: 20.12.2013
Екатерина Никитина
nevoka19
Рейтинг: 65
не верифицирован
Всего отзывов:
2
0
Опубликовала заданий:
16
Работ в портфолио:
5
Типовых услуг:
0
Работ на продажу:
0
Была на сайте:
2023-05-22 в 14:15
Предложить работу
Добавить в избранное
Добавить рекомендацию
Пожаловаться
Инженерия
31
0
НВК и ВК частного жилого дома
Используемые навыки:
Водоснабжение и водоотведение
Описание
Решение
Результат
Соавторы
Презентация проекта
Примеры реализации
Описание
Презентация проекта
Оценили проект:
0
×
Оценили проект
×
Авторизация
Для того чтобы оценивать проекты, вам нужно войти на сайт
Другие проекты
Все проекты
Тепловые сети для частного жилого дома
Котельные установки
Чертежи на заказ
FREELANCE.RU
Toggle navigation
Нанять фрилансера
Заказчику
Найти по специализации
Найти по услугам
Провести конкурс
Разместить задание
Виртуальный HR
Другое
Найти работу
Фрилансеру
Найти задание
Присоединиться к команде
Участвовать в конкурсе
Предложить услугу
Другое
Возможности
Для заказчика
Для фрилансера
Вход
Разместить задание
▲