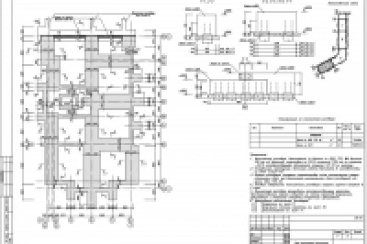
Ростверк
Для полной функциональности этого сайта необходимо включить JavaScript.
Чебоксары
В проектировании и строительстве нет безвыходных ситуаций
Денис Степанов
den0886
Рейтинг: 233
не верифицирован
Всего отзывов:
27
3
Опубликовал заданий:
94
Активность:
Работ в портфолио:
13
Типовых услуг:
0
Работ на продажу:
0
Зарегистрирован:
08.02.2014
Был на сайте:
2023-05-24 в 19:42
Предложить работу
Добавить в избранное
Добавить рекомендацию
Пожаловаться
Инженерия
47
0
Ростверк
Используемые навыки:
Строительные конструкции
Описание
Решение
Результат
Соавторы
Презентация проекта
Примеры реализации
Описание
Презентация проекта
Оценили проект:
0
×
Оценили проект
×
Авторизация
Для того чтобы оценивать проекты, вам нужно войти на сайт
Другие проекты
Все проекты
Дом из керамического камня
Коттедж на 140 м2
Хозпостройка с гаражом
FREELANCE.RU
Toggle navigation
Нанять фрилансера
Заказчику
Найти по специализации
Найти по услугам
Провести конкурс
Разместить задание
Виртуальный HR
Найти студию
Другое
Найти работу
Фрилансеру
Найти задание
Присоединиться к команде
Участвовать в конкурсе
Предложить услугу
Другое
Возможности
Для заказчика
Для фрилансера
Вход
Разместить задание
▲