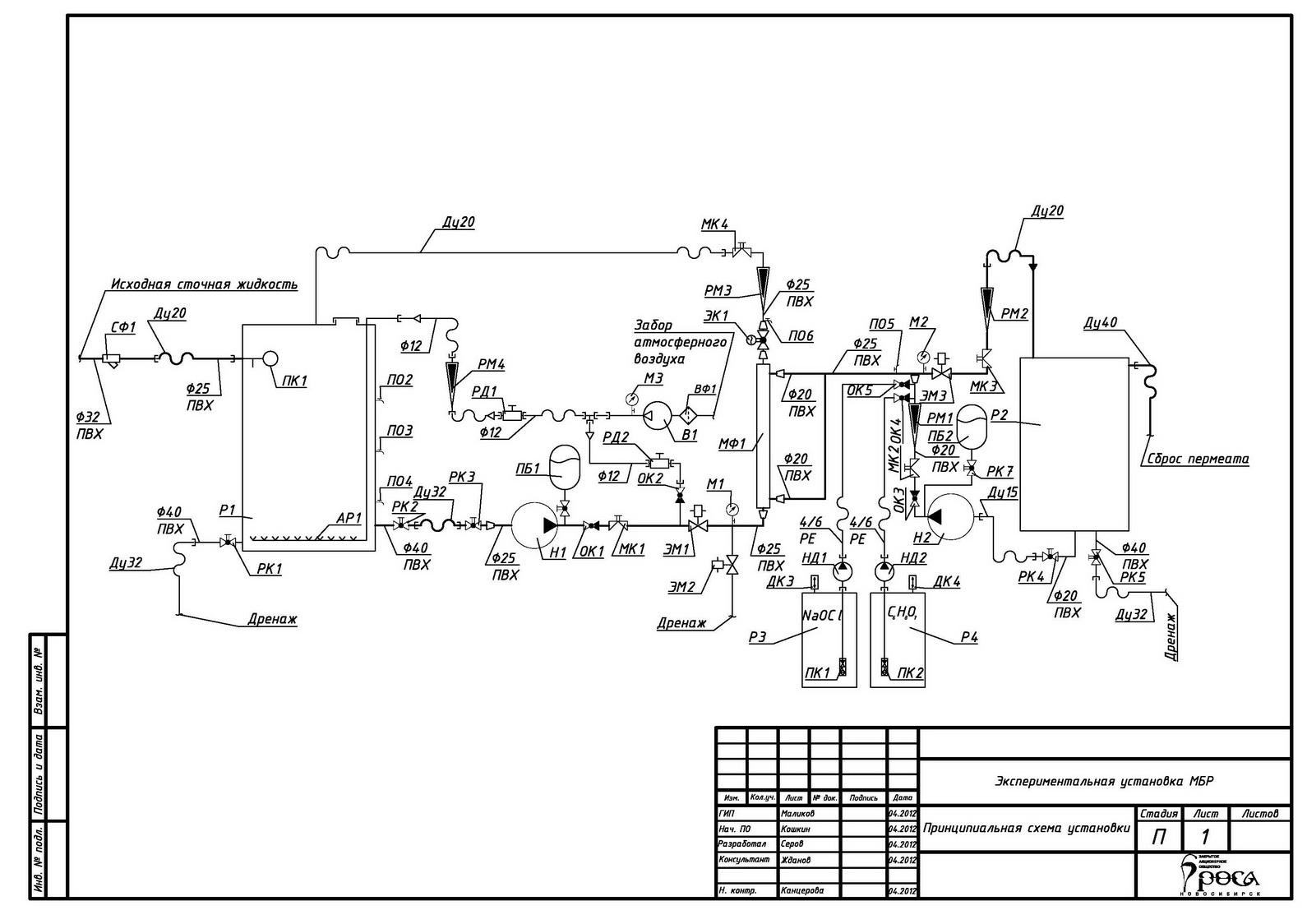
Технологическая схема пилотной установки мембранного биореактора
Для полной функциональности этого сайта необходимо включить JavaScript.
Новосибирск
39 лет
На сайте с: 23.09.2014
Погружен в Вашу задачу на 110%
Константин Серов
serovcv
Рейтинг: 117
не верифицирован
Всего отзывов:
8
0
Выполнил заданий:
8
Нейросаммари
Работ в портфолио:
17
Типовых услуг:
0
Работ на продажу:
0
Образование:
Cпециалитет
Стаж работы:
13 лет
Тип занятости:
Подработка
Юридический статус:
Самозанятый
Был на сайте:
2025-09-24 в 16:24
inbox
telegram
Предложить работу
Добавить в избранное
Добавить рекомендацию
Пожаловаться
Инженерия
33
0
Технологическая схема пилотной установки мембранного биореактора
Используемые навыки:
Водоснабжение и водоотведение
Описание
Решение
Результат
Соавторы
Презентация проекта
Примеры реализации
Описание
Презентация проекта
Оценили проект:
0
×
Оценили проект
×
Авторизация
Для того чтобы оценивать проекты, вам нужно войти на сайт
Другие проекты
Все проекты
Графический план производства строительных работ
Проектирование эстакады технологических трубопроводов промышленного пр...
Дизайн интернет-магазина
FREELANCE.RU
Toggle navigation
Нанять фрилансера
Заказчику
Найти по специализации
Найти по услугам
Провести конкурс
Разместить задание
Другое
Найти работу
Фрилансеру
Найти задание
Присоединиться к команде
Участвовать в конкурсе
Другое
Возможности
Для заказчика
Для фрилансера
Вход
Разместить задание
▲