Амбициозен, иду к своей цели!

Александр Пентегов is1jet

Рейтинг: 147
не верифицирован
Всего отзывов: 5 0
Выполнил заданий: 3
  • Работ в портфолио: 22
  • Типовых услуг: 0
  • Работ на продажу: 2
  • Возраст: 31 год
  • Зарегистрирован: 06.10.2018
Был на сайте:

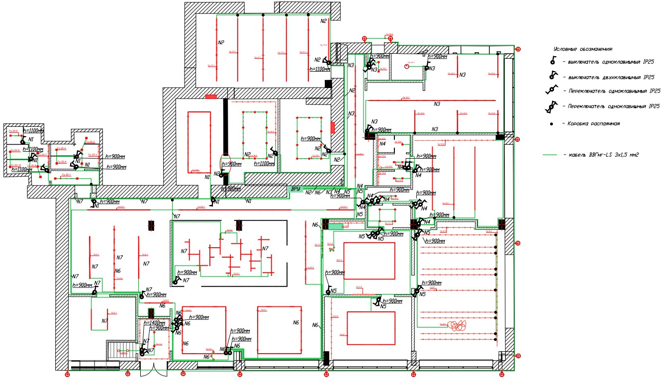
Расстановка светильников и разводка в офисе

Используемые навыки:

Описание

Расстановка светильников и разводка в офисе

Презентация проекта

pic4407240.jpg

Оценили проект:

0