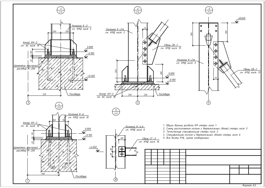
Узлы КМ
Для полной функциональности этого сайта необходимо включить JavaScript.
Челябинск
Игорь Лешок
masslay
Рейтинг: 135
не верифицирован
Всего отзывов:
1
0
Опубликовал заданий:
11
Нейросаммари
Активность:
Работ в портфолио:
30
Типовых услуг:
0
Работ на продажу:
0
Возраст:
39 лет
Зарегистрирован:
24.09.2012
Был на сайте:
2026-01-12 в 15:26
Предложить работу
Добавить в избранное
Добавить рекомендацию
Пожаловаться
Инженерия
97
0
Узлы КМ
Используемые навыки:
Строительные конструкции
Описание
Решение
Результат
Соавторы
Презентация проекта
Примеры реализации
Описание
Презентация проекта
Оценили проект:
0
×
Оценили проект
×
Авторизация
Для того чтобы оценивать проекты, вам нужно войти на сайт
Другие проекты
Все проекты
Конструкция металлического пандуса
Двухэтажное офисное здание в п. Солнечный берег
Металлическая ферма
FREELANCE.RU
Toggle navigation
Нанять фрилансера
Заказчику
Найти по специализации
Найти по услугам
Провести конкурс
Разместить задание
Виртуальный HR
Найти студию
Другое
Найти работу
Фрилансеру
Найти задание
Присоединиться к команде
Участвовать в конкурсе
Предложить услугу
Другое
Возможности
Для заказчика
Для фрилансера
Вход
Разместить задание
▲