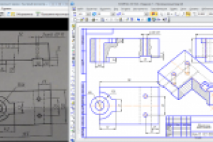
Аксонометрия+3 вида детали
Для полной функциональности этого сайта необходимо включить JavaScript.
Красноярск
Елена Тимофеева
e_le_n
Рейтинг: 290
не верифицирован
Всего отзывов:
9
0
Выполнила заданий:
11
Нейросаммари
Активность:
Работ в портфолио:
55
Типовых услуг:
0
Работ на продажу:
0
Возраст:
45 лет
Зарегистрирован:
22.09.2013
Была на сайте:
2025-10-15 в 16:05
inbox
408902@mail.ru
Предложить работу
Добавить в избранное
Добавить рекомендацию
Пожаловаться
Инженерия
68
0
Аксонометрия+3 вида детали
Используемые навыки:
Чертежи/Схемы
Описание
Решение
Результат
Соавторы
Презентация проекта
Примеры реализации
Описание
Презентация проекта
Оценили проект:
0
×
Оценили проект
×
Авторизация
Для того чтобы оценивать проекты, вам нужно войти на сайт
Другие проекты
Все проекты
Работа 2078128
Работа 2078134
Работа 3587892
FREELANCE.RU
Toggle navigation
Нанять фрилансера
Заказчику
Каталог фрилансеров
Каталог PRO
Каталог студий
Каталог услуг
Каталог работ
Виртуальный HR
Умный поиск
Провести конкурс
Разместить задание
Найти работу
Найти задание
Присоединиться к команде
Участвовать в конкурсе
Предложить услугу
Вход
Разместить задание
▲