Создаем рабочие проекты, а не "красивые" картинки

Павел Абрамов Архстрой Дизайн Pavel_Abramov

Рейтинг: 220
не верифицирован
Всего отзывов: 6 0
Выполнил заданий: 9
Опубликовал заданий: 7
  • Работ в портфолио: 140
  • Типовых услуг: 1
  • Работ на продажу: 0
Был на сайте:

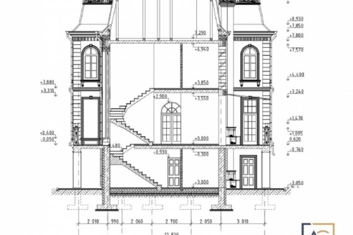
Разрез особняка в Подушкино

Используемые навыки:

Описание

Проект берет свое начало еще в 2018 году. К нам обратился заказчик, который хотел построить себе не просто дом, а дворец! Естественное для начала нужен был индивидуальный проект дома - что мы и сделали! Был разработан эскизный проект, который полностью удовлетворил все пожелания заказчика!
После согласования эскизного проекта мы приступили к разработке рабочей документации для строительства дома. Проект был разработан с применением современных конструктивных технологий в строительстве. Документация с точным количеством материалов была передана заказчику для реализации проекта дома.
В настоящий момент проект в стадии реализации.

Ссылки на примеры реализации

 arkhstroydesign.ru/more-project-houses/podyshkino

Презентация проекта

pic4337497.jpg

Оценили проект:

0