Я уверенный, творческий и неукротимый - это я!

Александр Земляк zemlyak36

Рейтинг: 357
Паспорт верифицирован
Всего отзывов: 6 1
Профессионализм: 10 Коммуникация: 10
Выполнил заданий: 7
  • Работ в портфолио: 8
  • Типовых услуг: 2
  • Работ на продажу: 0
  • Возраст: 42 года
  • Зарегистрирован: 13.06.2019
Был на сайте:

Исполнительные схемы

Используемые навыки:

Описание

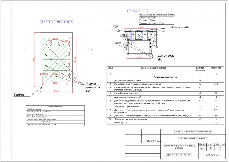
Выполнение исполнительных схем по замерам заказчика, с расчётом объёма выполненных работ. Объект РТС Чертаново.

Презентация проекта

pic4048606.jpg

Оценили проект:

0