Мой подход – это внимание к деталям и точность выполнения!

Николай Монтвид KD_Master

Рейтинг: 275
Паспорт верифицирован
Всего отзывов: 5 0
Выполнил заданий: 2
Опубликовал заданий: 7
  • Активность:
  • Работ в портфолио: 188
  • Типовых услуг: 0
  • Работ на продажу: 0
Был на сайте:

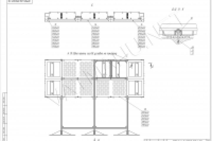
Видеостена лист 2

Используемые навыки:

Описание

Сборочный чертеж видеостены. Конструкция полностью разработана нашими специалистами

Ссылки на примеры реализации

 vatmanu.net/portfolio/chertezhi-v-solidworks/

Презентация проекта

pic1738721.jpg

Оценили проект:

0