Ваш Личный Архитектор

Александр Шлык supersanek

Рейтинг: 152
не верифицирован
Всего отзывов: 4 0
Выполнил заданий: 3
Опубликовал заданий: 8
  • Работ в портфолио: 67
  • Типовых услуг: 0
  • Работ на продажу: 0
Был на сайте:

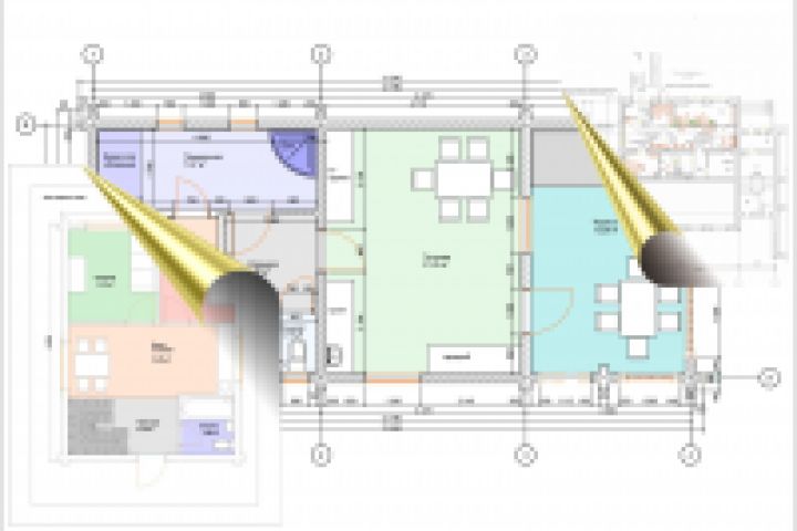
План, как основа проекта

Используемые навыки:

Описание

Проектирование будущей постройки - это необходимость о которой не все задумываются, но которая позволяет внести все изменения, подсчитать необходимые материалы, увидеть используемые площади и внешний вид в целом, что несомненно избавит большого количества проблем еще до начала работ!

Презентация проекта

pic1107398.jpg

Оценили проект:

0