Ваш Личный Архитектор

Александр Шлык supersanek

Рейтинг: 152
не верифицирован
Всего отзывов: 4 0
Выполнил заданий: 3
Опубликовал заданий: 8
  • Работ в портфолио: 67
  • Типовых услуг: 0
  • Работ на продажу: 0
Был на сайте:

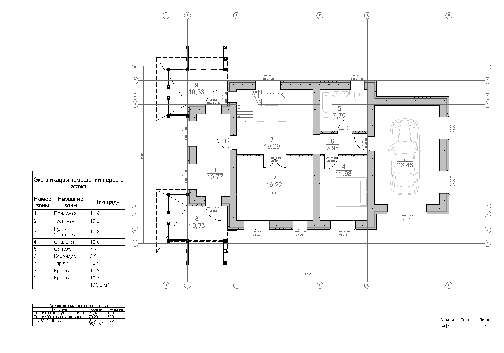
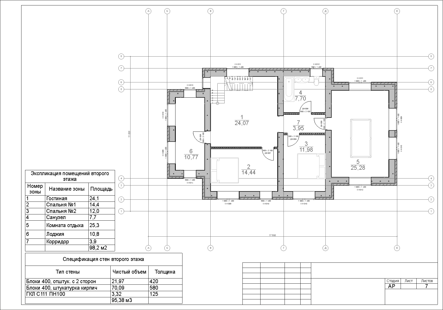
проект АР дом из пеноблока 11х17м

Описание

проект АР дом из пеноблока облицованый кирпичом с отделкой из травертина.
Состав:
1. План фундамента
2. План первого этажа
3. План второго этажа
4. План кровли
5. План стропильной системы
6. Спецификация стропильной системы.

Презентация проекта

pic1514737.jpg
план первого этажа.jpg
план второго этажа.jpg

Оценили проект:

0