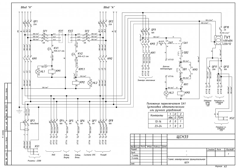
ЩСН
Для полной функциональности этого сайта необходимо включить JavaScript.
Москва
3D разработка | ЭС ЭМ ЭО
Андрей Демченков
dyuva
Рейтинг: 271
не верифицирован
Всего отзывов:
24
0
Выполнил заданий:
33
Нейросаммари
Активность:
Работ в портфолио:
61
Типовых услуг:
0
Работ на продажу:
0
Зарегистрирован:
28.05.2013
Был на сайте:
2025-11-04 в 08:39
+79997651002
inbox
telegram
MAX
whatsapp
art@demchenkov.ru
art.demchenkov.ru
Предложить работу
Добавить в избранное
Добавить рекомендацию
Пожаловаться
Инженерия
73
0
ЩСН
Используемые навыки:
Электроснабжение
Описание
Решение
Результат
Соавторы
Презентация проекта
Примеры реализации
Описание
Щит собственных нужд
Презентация проекта
Оценили проект:
0
×
Оценили проект
×
Авторизация
Для того чтобы оценивать проекты, вам нужно войти на сайт
Другие проекты
Все проекты
2ТП
БКТП-1600КВА
Поперечный разрез двигателя КамАЗ
FREELANCE.RU
Toggle navigation
Нанять фрилансера
Заказчику
Найти по специализации
Найти по услугам
Провести конкурс
Разместить задание
Виртуальный HR
Найти студию
Другое
Найти работу
Фрилансеру
Найти задание
Присоединиться к команде
Участвовать в конкурсе
Предложить услугу
Другое
Возможности
Для заказчика
Для фрилансера
Вход
Разместить задание
▲