Рейтинг: 205
Паспорт верифицирован
Всего отзывов: 0
  • Работ в портфолио: 50
  • Типовых услуг: 1
  • Работ на продажу: 11
  • Возраст: 52 года
  • Стаж работы: 4 года
  • Зарегистрирован: 08.10.2022
  • Образование: Бакалавриат
  • Юридический статус:Самозанятый
  • Стоимость услуг (руб): 500 за час
Был на сайте:

А-Фрейм , два этажа

Используемые навыки:

Описание

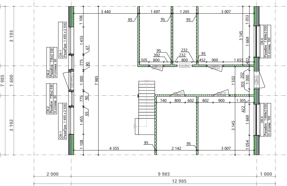
Дом двухэтажный для постоянного проживания в стиле А-фрейм. Терраса. Крыша двухскатная, уклон 60
градусов. Фундамент свайный. Чердака нет. Размеры в осях 10х8. Высота 1-го этажа 2,6м., высота 2-го этажа
3,4м. Есть мансардное окно на кухне. Каркас из сухой строганной доски.

Ссылки на примеры реализации

 t.me/Evgeniy_348

Презентация проекта

pic4628817.jpg
5.jpg
6.jpg
8.jpg

Оценили проект:

0