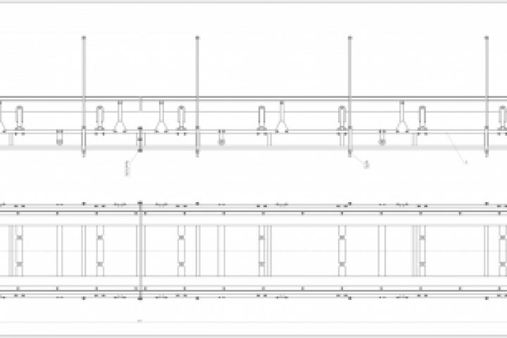
Транспортер ТЛП-10
Для полной функциональности этого сайта необходимо включить JavaScript.
Ростов-на-Дону
43 года
На сайте с: 16.04.2017
Дмитрий Федоненков
konstr-proekt
Рейтинг: 111
не верифицирован
Всего отзывов:
0
Выполнил заданий:
1
Работ в портфолио:
51
Типовых услуг:
0
Работ на продажу:
0
Был на сайте:
2025-12-07 в 09:57
inbox
konstr-proekt@mail.ru
Предложить работу
Добавить в избранное
Добавить рекомендацию
Пожаловаться
Инженерия
22
0
Транспортер ТЛП-10
Используемые навыки:
Чертежи/Схемы
Описание
Решение
Результат
Соавторы
Презентация проекта
Примеры реализации
Описание
Транспортер ТЛП-10
Презентация проекта
Оценили проект:
0
×
Оценили проект
×
Авторизация
Для того чтобы оценивать проекты, вам нужно войти на сайт
Другие проекты
Все проекты
Транспортер ТЛП
Дробилка молотковая ДМ10
Зал зрительный (трибуны)
FREELANCE.RU
Toggle navigation
Нанять фрилансера
Заказчику
Найти по специализации
Найти по услугам
Провести конкурс
Разместить задание
Другое
Найти работу
Фрилансеру
Найти задание
Присоединиться к команде
Участвовать в конкурсе
Другое
Возможности
Для заказчика
Для фрилансера
Вход
Разместить задание
▲