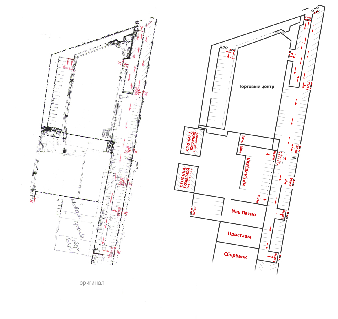
отрисовка плана этажа в векторе
Для полной функциональности этого сайта необходимо включить JavaScript.
Санкт-Петербург
Я люблю свою работу!
Дмитрий Алексеев
CREOLIT
Рейтинг: 3 172
Верифицирован через Сбер ID
Всего отзывов:
291
0
Профессионализм:
10
Коммуникация:
10
Выполнил заданий:
272
Нейросаммари
Активность:
Работ в портфолио:
172
Типовых услуг:
0
Работ на продажу:
0
Возраст:
42 года
Зарегистрирован:
04.10.2006
Юридический статус:
Самозанятый
Был на сайте:
2026-04-21 в 14:03
inbox
telegram
whatsapp
creolit.tilda.ws
Предложить работу
Добавить в избранное
Добавить рекомендацию
Пожаловаться
Графический дизайн
113
0
отрисовка плана этажа в векторе
Используемые навыки:
Векторизация
Векторная графика
Векторная трассировка
Описание
Решение
Результат
Соавторы
Презентация проекта
Примеры реализации
Описание
отрисовка плана этажа в векторе
Презентация проекта
Оценили проект:
0
×
Оценили проект
×
Авторизация
Для того чтобы оценивать проекты, вам нужно войти на сайт
Другие проекты
Все проекты
визитка для рекламной компании
Логотип для Клуба активных мам
Логотип для компании SENSIS
FREELANCE.RU
Toggle navigation
Нанять фрилансера
Заказчику
Каталог фрилансеров
Каталог PRO
Каталог студий
Каталог услуг
Каталог работ
Виртуальный HR
Умный поиск
Провести конкурс
Разместить задание
Найти работу
Найти задание
Присоединиться к команде
Участвовать в конкурсе
Предложить услугу
Вход
Разместить задание
▲