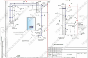
Внутренний газопровод
Для полной функциональности этого сайта необходимо включить JavaScript.
Москва
Качественно и быстро!
Радмир HVAC
radmirsib
Рейтинг: 235
не верифицирован
Всего отзывов:
20
0
Выполнил заданий:
20
Нейросаммари
Работ в портфолио:
75
Типовых услуг:
1
Работ на продажу:
0
Зарегистрирован:
20.02.2018
Был на сайте:
2025-09-10 в 10:43
inbox
telegram
radmirsib@yandex.ru
freelance.ru/radmirsib
Предложить работу
Добавить в избранное
Добавить рекомендацию
Пожаловаться
Инженерия
38
0
Внутренний газопровод
Используемые навыки:
Проектирование объектов
Описание
Решение
Результат
Соавторы
Презентация проекта
Примеры реализации
Описание
Презентация проекта
Оценили проект:
0
×
Оценили проект
×
Авторизация
Для того чтобы оценивать проекты, вам нужно войти на сайт
Другие проекты
Все проекты
Аксонометрическая схема системы вентиляции
Техническое обследование системы вентиляции медучреждения
Система вентиляции спортивного комплекса
FREELANCE.RU
Toggle navigation
Нанять фрилансера
Заказчику
Найти по специализации
Найти по услугам
Провести конкурс
Разместить задание
Виртуальный HR
Найти студию
Другое
Найти работу
Фрилансеру
Найти задание
Присоединиться к команде
Участвовать в конкурсе
Предложить услугу
Другое
Возможности
Для заказчика
Для фрилансера
Вход
Разместить задание
▲