Проекты для жизни, а не для журналов

Антон Галанов AnGalanoff

Рейтинг: 4 008
не верифицирован
Всего отзывов: 0
  • Работ в портфолио: 67
  • Типовых услуг: 2
  • Работ на продажу: 0
  • Стаж работы: 21 год
  • Зарегистрирован: 15.10.2011
  • Образование: Бакалавриат
  • Юридический статус:Самозанятый
Был на сайте:

Дом с оранжереей 2023г

Описание

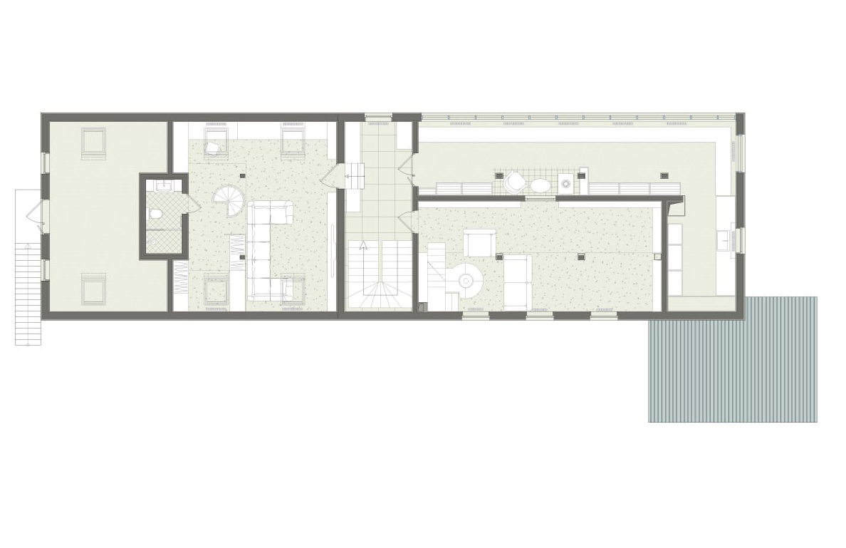
Дом разрабатывался как комплекс подсобных помещений. К первоначальному запросу на гараж с кладовыми добавились кухня, две гостевые комнаты, оранжерея и мастерская. Не смотря на увеличение площади застройку, нужно было обеспечивать доступ на часть участка с огородом и разделить жилые помещения и техническую часть с гаражом и котельной.

Решение

Архитектурным решением было разделить первый этаж на две отдельных части и соединить их по второму этажу, образовав проход под аркой. Тем самым разделены техническая часть дома и жилая с гостевыми спальнями. Стилевое решение было выбрано исходя из уже построенного жилого дома.

Результат

Хоз блок развившийся в полноценную постройку получился функциональным и играет не только роль набора вспомогательных помещений, не планировавшихся в жилом доме, но и, из-за вытянутой формы, отгораживает большую часть участка от улицы.

Презентация проекта

1.jpg
2.jpg
3.jpg
693c11b4a1ed7245520a2abf2c8d053a_2e076827-cb51-4169-852f-96cdc5a
55d6b96099fab0fa047b649da40914e4_e7a80b99-c5e6-4ceb-80d2-933ce8b

Оценили проект:

0