Создаем пространство, которое вдохновляет!

Кирилл Гастев kgastev

Рейтинг: 231
Паспорт верифицирован
Всего отзывов: 0
  • Активность:
  • Работ в портфолио: 19
  • Типовых услуг: 0
  • Работ на продажу: 0
  • Зарегистрирован: 03.04.2024
Был на сайте:

Комплект чертежей квартиры

Описание

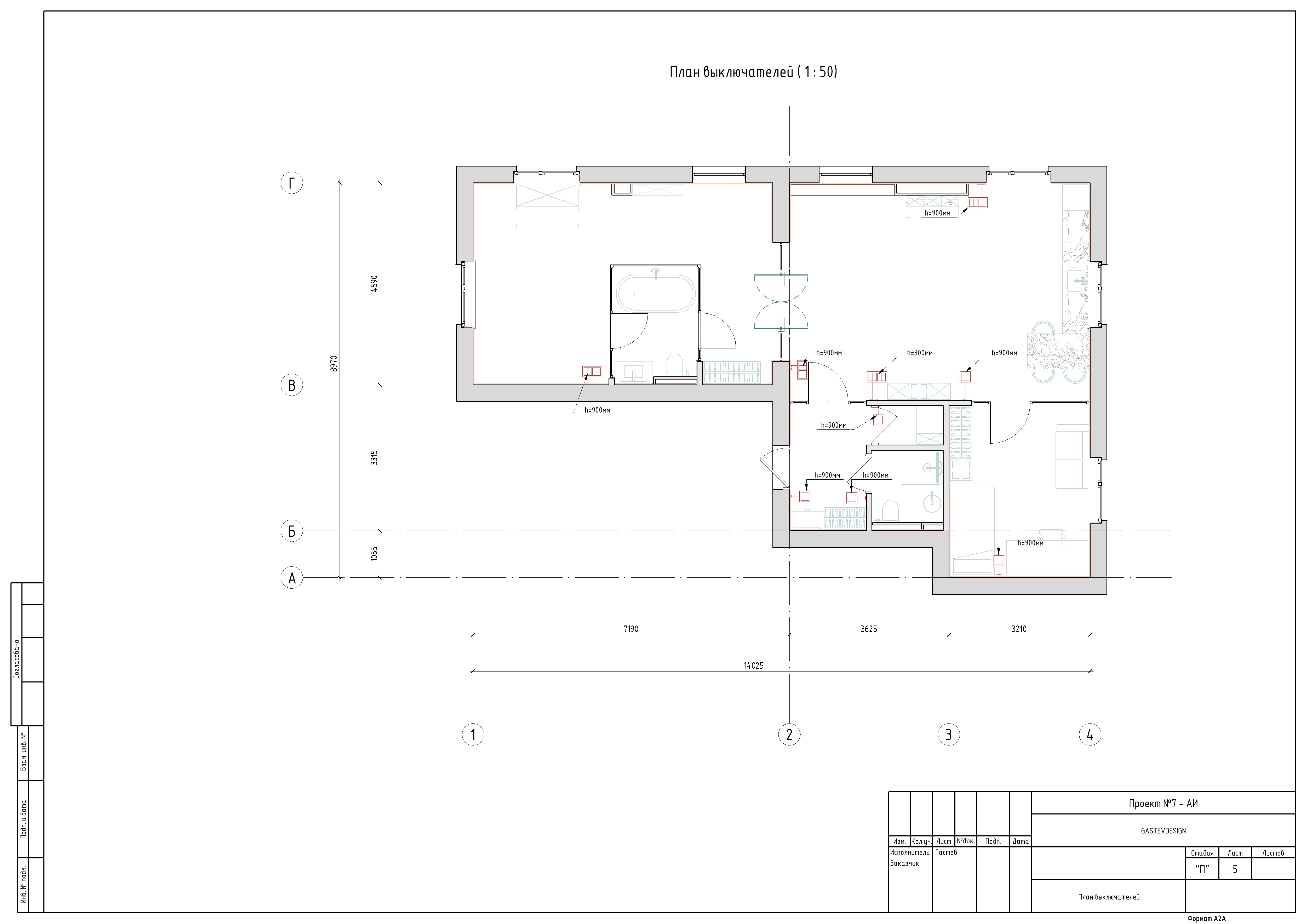
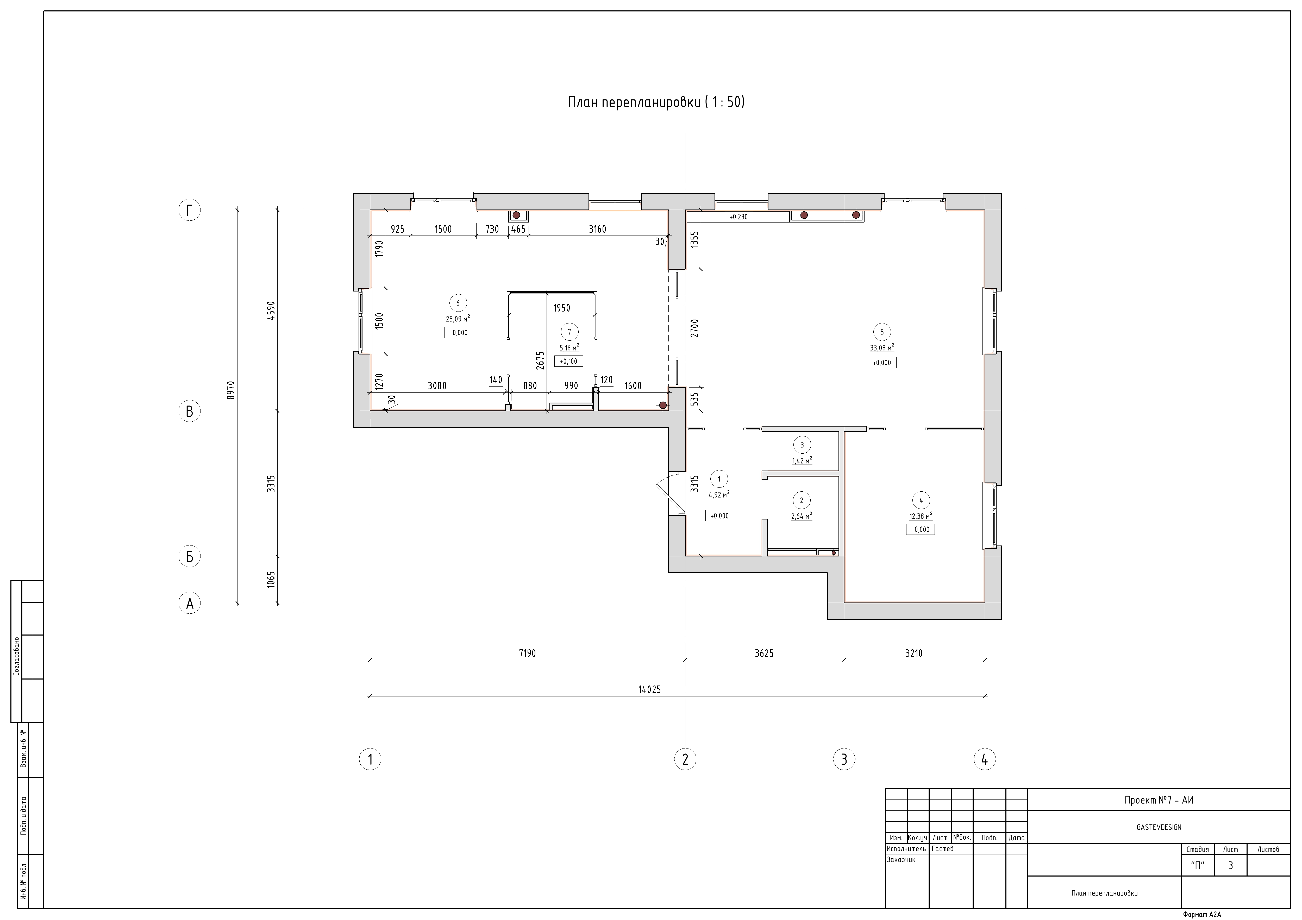
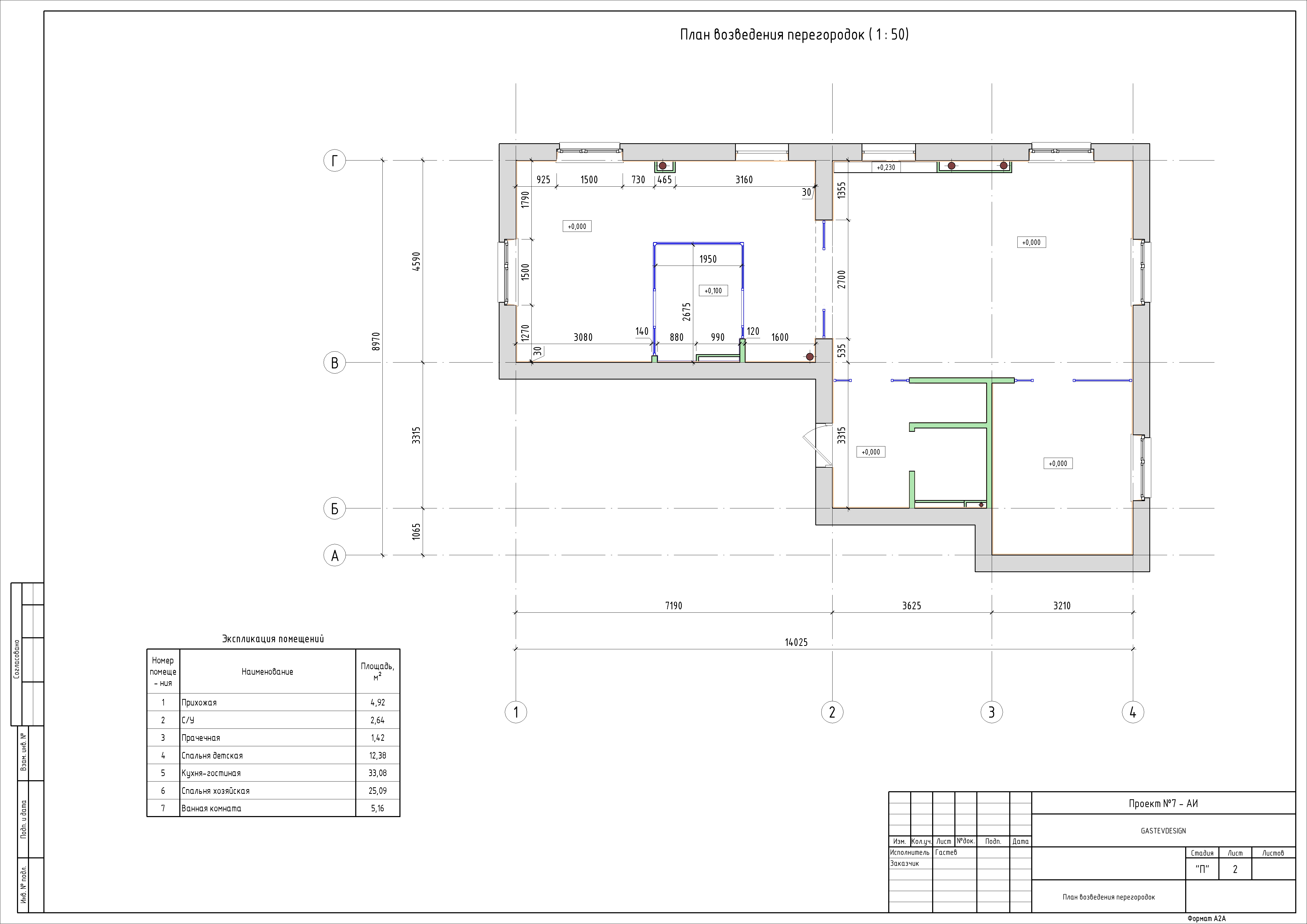
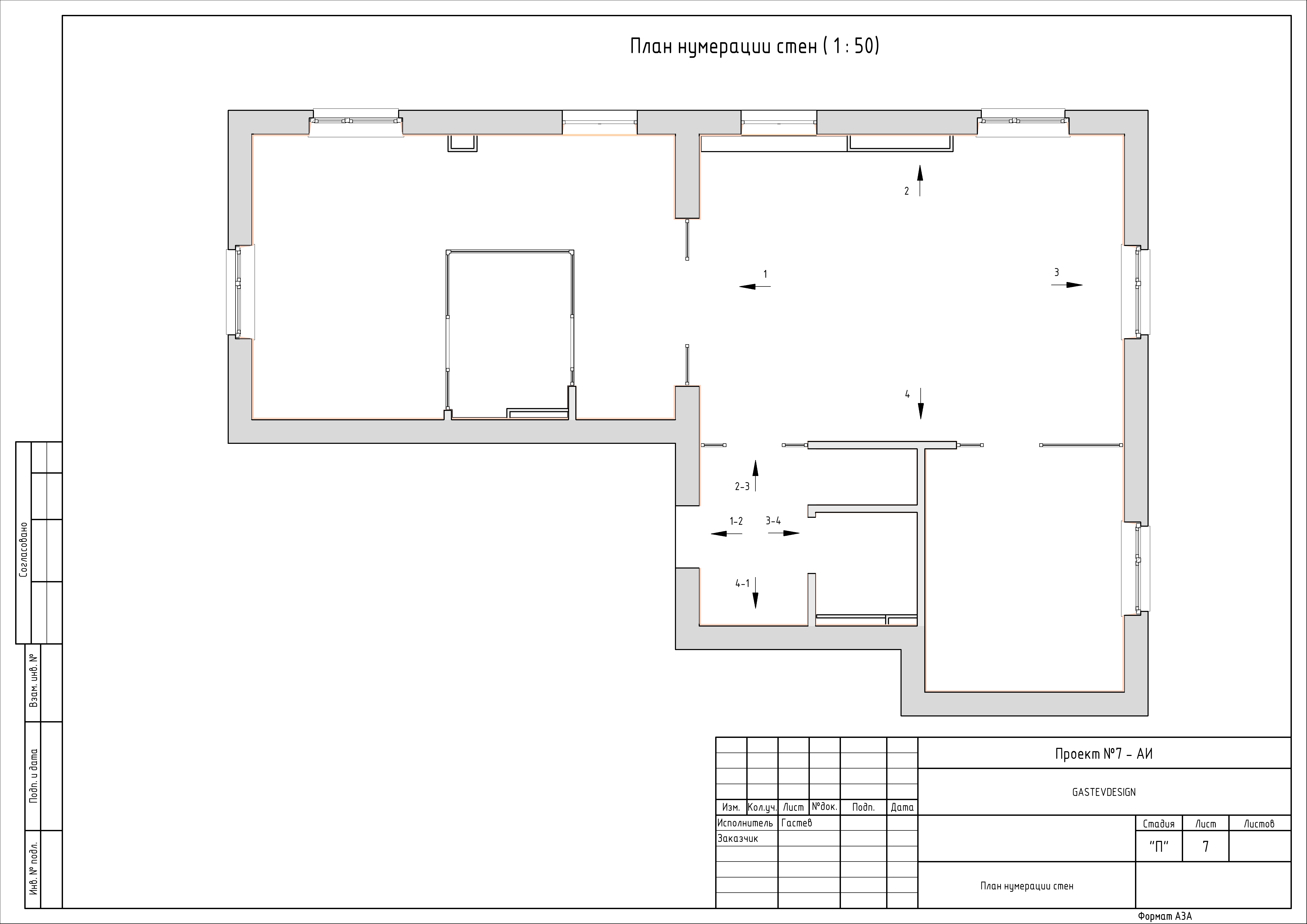
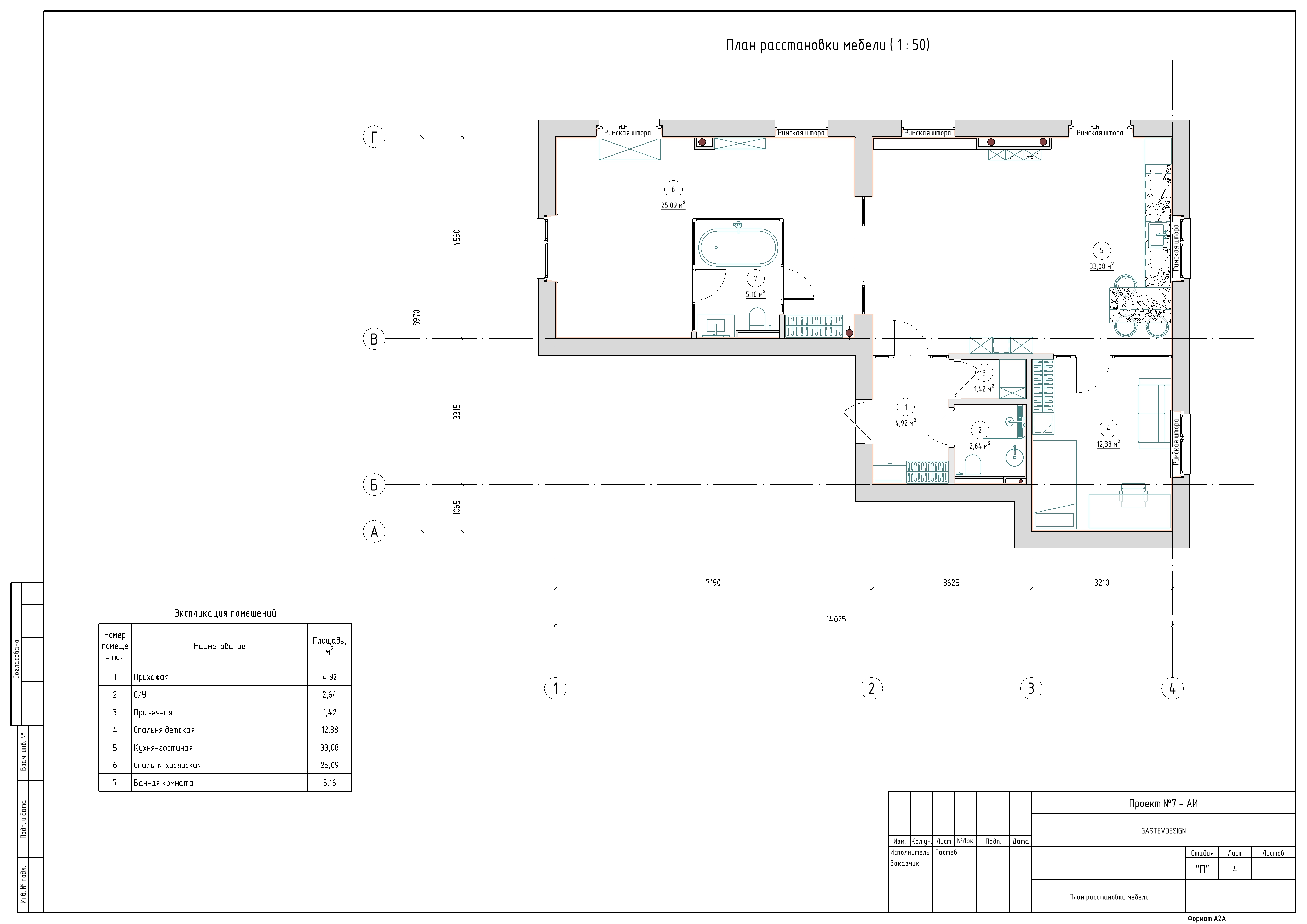
Задача была сделать комплект чертежей для квартиры, которые включали бы в себя планы расстановки мебели, розеток, электровыводов и выключателей, перепланировки, обмерный план, а так же развертку двух помещений.

Презентация проекта

Квартира дизайн - Лист - 1 - Обмерный план.jpg
Квартира дизайн - Лист - 2 - План возведения перегородок.jpg
Квартира дизайн - Лист - 3 - План перепланировки.jpg
Квартира дизайн - Лист - 4 - План расстановки мебели.jpg
Квартира дизайн - Лист - 5 - План выключателей.jpg
Квартира дизайн - Лист - 6 - План розеток и электровыводов.jpg
Квартира дизайн - Лист - 7 - План нумерации стен.jpg
Квартира дизайн - Лист - 8 - Развертка стен помещения №1.jpg
Квартира дизайн - Лист - 9 - Развертка стен помещения №5.jpg

Оценили проект:

0