дизайнер интерьера-реставратор https://evahaos.ru/

Надежда Петрова EvaHaos

Рейтинг: 4 200
Паспорт верифицирован
Всего отзывов: 29 0
Профессионализм: 10 Коммуникация: 10
Выполнила заданий: 31
  • Активность:
  • Работ в портфолио: 191
  • Типовых услуг: 12
  • Работ на продажу: 0
  • Возраст: 35 лет
  • Стаж работы: 15 лет
  • Зарегистрирован: 26.09.2017
  • Образование: Среднее профессиональное
  • Юридический статус:Частное лицо
  • Стоимость услуг (руб): 3 000 за час
Была на сайте:

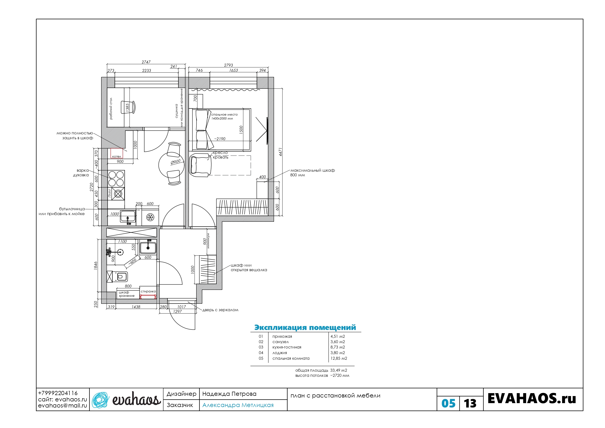
Технический дизайн проект квартиры 33 м2

Описание

Это проект реально выполненного технического дизайн проекта для квартиры 33 м2, стоимость такой работы 900 р/м2
Такого состава проекта будет достаточно, чтобы подготовить квартиру к чистовой отделке. В техническом дизайн проекте есть условная расстановка мебели исходя из ваших потребностей, расположение освещение, которое вы хотели бы установить с различными сценариями включения, розетки расположены так, чтобы вам было удобно жить в вашей квартире.

за подробностями обращайтесь.
Цель каждого проекта - комфортное проживание в личном пространстве, будь то квартира или частный дом. Ценность для человека всегда одинаковая: недорого, качественно, красиво, индивидуально и комфортно.

Если у вас именно такая цель, то я вам помогу реализовать ее.

Решение

Дизайн интерьера - это осознанный подход к пространству, использование функциональной мебели, возможность переставить мебель под настроение.
Самое важное в интерьере - это отражение вас в интерьере.

. Я помогу вам воплотить ваши мечты в реальность, учитывая ваш бюджет и потребности.
. Сделаю ту самую инструкцию для ваших работников, которые с легкостью сделают по чертежам ремонт. Без вопросов с первого раза.
. Организую удобный процесс работы: предложу концепцию дизайна, порекомендую ремонтную бригаду - есть проверенная временем с прямыми руками.
Подберу реальную мебель, отделочные материалы, авторские картины.
Подготовлю профессиональную инструкцию для реализации вашего будущего.

Результат

результат - квартира подготовленная к чистовой отделке, дальше остается выбрать дизайн, отделку, реальную стандартную мебель или проработать мебель на заказ и сделать визуализации.

Презентация проекта

02_merged_page-0002.jpg
02_merged_page-0003.jpg
02_merged_page-0005.jpg
02_merged_page-0006.jpg
02_merged_page-0007.jpg
02_merged_page-0009.jpg
02_merged_page-0010.jpg
02_merged_page-0011.jpg
02_merged_page-0012.jpg
02_merged_page-0013.jpg

Оценили проект:

1