Гармония и комфорт - моя задача, ваши мечты - в реальность!

Ольга Птицына olga68111

Top 10
Рейтинг: 7 586
Верифицирован через Сбер ID
Всего отзывов: 1 0
Профессионализм: 10 Коммуникация: 10
Выполнила заданий: 2
  • Работ в портфолио: 6
  • Типовых услуг: 5
  • Работ на продажу: 0
  • Возраст: 57 лет
  • Стаж работы: 3 года
  • Зарегистрирован: 13.09.2022
  • Образование: Cпециалитет
  • Стоимость услуг (руб): 300 за час 50 000 за месяц
Была на сайте:

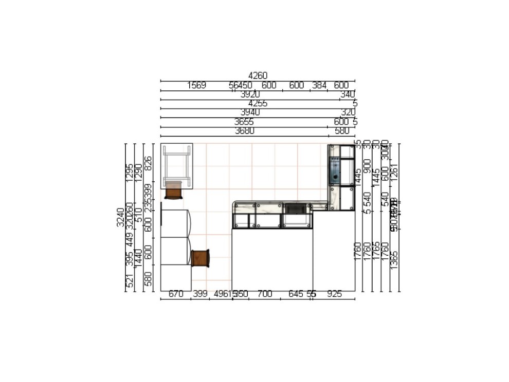
Разработка проекта кухни

Описание

Нужно было спроектировать кухню, подобрать фурнитуру, технику. Спроектировать шкафы.

Решение

Замер помещения
Проект помещения кухни по замерам, обозначение расположения вытяжки, газовой трубы, подводки воды и канализации. в ACad
Эскиз кухни в , согласно размерам помещения в Pro100.
Согласование предпочтения по цвету и текстуры фасадов, размеры и наличие техники
Деталировка мебели по элементам, спецификация техники и фурнитуры. Exel
Смета
Заказ материалов
Присадка элементов из ДСП и сборка кухни специалистом. Модули кухни собираются по стандартным схемам.

Результат

Проект кухни 6 дней.
Всё собрано и установлено.

Презентация проекта

Присадка .jpg
СМЕТА.jpg
5c33b006-5e09-4507-bd3b-e9680af2a0da.jfif
9c6e2a2b-d34e-42ff-bd8c-866a00755f4e.jfif
Снимок экрана 2026-01-14 161509.jpg
Снимок экрана 2026-01-14 161726.jpg
5420114849586417934.jpg
шкафы.jpg
шкаф для рабочих инструментов.jfif
шкаф и тумба.jfif

Оценили проект:

0